Referat: 19. august 2025 kl. 13:00
Deltagere
- Niels Rasmussen
- Irene Lund Pedersen
- Ole Nyholm Knudsen
- Jens Jacob Østergaard
- Jørgen Byskov
- Rita Byskov
- Hans Pedersen
Referat
- Godkendelse af dagsorden
- Forslag til gebyrer for renovation i 2026
- Udkast til reviderede affaldsregulativer
- Stadeplads for pølsevognen på Ringkøbing Torv
- Fjernvarmepulje Ansøgning - Fjelstervang
- Igangsætning af plangrundlag for smedeværksted ved Tarmvej i Sdr. Bork
- Endelig vedtagelse af plangrundlag for udvidelse af Vestjysk Biogas, Arnborgvej 23A, Skjern
- Anmodning om igangsættelse af plangrundlag for et område til boligformål ved Holmsland Klitvej, Hvide Sande
- Offentliggørelse af et ændret planforslag for et område til teknisk anlæg (Renseanlæg) ved Ringkøbing
- Lodbergsvej 26, 6950 - Dispensation til køb af P-pladser via P-Fonden
- Badevej 17, 6950 - Dispensation til køb af P-pladser via P-Fonden
- Åvænget 5, 6980 - Landzonetilladelse til ombygning og udvidelse af Tim Mølle Dambrug
- Godkendelse af Ringkøbing-Skjern Kommunes deltagelse i et EU-Life projekt - LIFE4Rivers
- Ansøgning om miljøgodkendelse inkl. dispensation for lugt til husdyrbruget på adressen Attenagrevej 9, 6950 Ringkøbing.
- Tilkendegivelse af ekspropriationsvilje til etablering af cykelsti mellem Hostedhøj og Sønderupvej
- Tilkendegivelse af ekspropriationsvilje til etablering af sideudvidelse mellem Sdr. Vium og Lyne
- Budgetforslag 2026, Midttrafik
- Budgetopfølgning pr. 31. juli 2025, Teknik- og Miljø
- Budgetopfølgning pr. 31. juli 2025, anlæg Teknik- og Miljø
- Gensidig orientering
- Underskriftsside
Kopier link til punktet - Print
1 : Godkendelse af dagsorden
Sagsnr:
BilagIngen bilag.
BeslutningTeknik- og Miljøudvalget godkendte dagsordenen.
Kopier link til punktet - Print
2 : Forslag til gebyrer for renovation i 2026
Sagsnr: 24-024765
SagsfremstillingAdministrationen fremsender hermed forslag til gebyrer på renovations- og genbrugspladsområdet, der skal indgå i det samlede gebyrblad for 2026.
Indledningsvis orienteres om de forskellige strukturelle ændringer, der vil have betydning for gebyrerne fremadrettet. Herefter gennemgås begrundelserne for de gebyrændringer, der er for 2026.
Strukturelle ændringer
Udgifter til efterbehandlingen af det lukkede kommunale deponi ved Tarm
Ringkøbing-Skjern Kommunes udgifter til efterbehandlingen af det lukkede kommunale deponi ved AFLD i Tarm indgår fra og med 2026 i genbrugspladsgebyret.
Driftsudgifterne er hidtil blevet afholdt af den deponipulje der blev etableret, da deponiet var i drift. Det forventes, at deponipuljen går i nul i løbet af 2026.
Ringkøbing-Skjern Kommune er sammen med Varde Kommune økonomisk forpligtet til at afholde udgifterne til efterbehandlingen af det lukkede deponi.
Momsfritagelse på renovationsgebyrer for husholdninger
På baggrund af Landsskatterettens afgørelse i 2020 om, at renovationsgebyrer for private er momsfritaget, har administrationen ansøgt Skat om tilbagebetaling af moms på de private renovationsgebyrer fra 2012 og frem. Det er pt. uafklaret hvad resultatet bliver, men administrationen forventer, at der vil komme en tilbagebetaling, som skal tilbageføres til borgerne gennem renovationsgebyrerne. En tilbageførelse via renovationsgebyrerne vil tidligst ske med 2027-gebyrerne og frem.
Udvidet producentansvar på batterier
I august i år træder nye regler i kraft for batterier, hvor producenterne også får ansvaret for indsamlingen, som kommunerne hidtil har haft. Reglerne får virkning fra 1. januar 2026, og der er i reglerne mulighed for, at de kollektive ordninger for producenterne kan indgå aftaler med de enkelte kommuner om fortsat indsamling af batterier.
Uanset om kommunen indgår en aftale om at indsamle batterier for producenterne mod betaling eller producenterne selv står for det fra 2026 og frem, vil det have betydning for budgettet og dermed renovationsgebyrerne. Da der fortsat er en række uafklarede forhold, er det først muligt at tage højde for det nye udvidet producentansvar på batterier i 2027-gebyrerne.
Ændret beregningsmetode
Fra og med 2025 er der trådt nye regler i kraft om udvidet producentansvar på emballageaffald, hvor producenternes kollektive ordninger skal betale kommunerne for indsamlingen af emballageaffald i vores affaldsordninger. Der er fastsat regler for hvordan kommunerne skal beregne disse såkaldte producentgebyrer for emballageaffald, som de kollektive ordninger skal betale.
For i højere grad at matche beregningen af vores renovationsgebyrer med beregningsmetoden for producentgebyrerne for emballageaffald, og dermed forenkle den samlede beregningsproces, har administrationen ændret måden at beregne affaldsgebyrerne på for de henteordninger, hvor borgerne får hentet affald ved deres ejendom.
Det betyder, at gebyrerne nu bliver beregnet direkte ud fra de faktiske budgetudgifter – på samme måde som vi allerede gør med genbrugspladsgebyret.
Den nye metode giver en mere ensartet og gennemsigtig pris pr. liter affald – uanset om man har en stor eller lille beholder, eller hvor ofte man får den tømt. Det skaber større lighed mellem borgere med forskellige behov.
Men det betyder også, at nogle gebyrer stiger og andre falder i forhold til gebyrerne for 2025. Det skyldes, at den tidligere model i praksis favoriserede større beholdere og hyppigere tømning med en lavere pris pr. liter. Den forskel udlignes nu.
2026 gebyrerne
Den budgetterede indtægt fra producentgebyrerne for emballageaffald er sammen med den ændrede beregningsmetode de primære årsager til forskellene mellem gebyrerne for 2026 og 2025.
For bigbag-ordningen for eternit- og asbesttagplader, skyldes ændringerne i forhold til 2025 dog, en lavere gennemsnitlige transportpris pr. bigbag og en øget deponeringspris for tagplader.
Årsgebyr for standardaffaldsløsning
For at give et overblik over betydningen af ændringerne i gebyrerne for 2026 sammenlignet med 2025, er der i vedlagte bilag beregnet årsgebyret for standardaffaldsløsningen for henholdsvis enfamiliehuse, sommerhuse og husstande med fælles affaldsløsning. Hvor der ved "standard" forstås den beholdertype der er flest af indenfor den pågældende husstandstype.
Nye gebyrer
Asbestholdige beklædningsplader
Genbrug har øget opmærksomhed på affaldstyper der indeholder asbest af hensyn til arbejdsmiljøet på genbrugspladserne og krav til håndteringen fra modtageanlæggene.
Derfor arbejdes der på at etablere en bigbag-ordning for beklædningsplader med asbest på samme måde som den ordning der allerede er for tagplader.
Beklædningsplader med asbest ligner i mange aspekter tagplader, men er væsentlig større end tagpladerne og stiller derfor andre krav til de bigbags og træpaller, der skal bruges i en ordning. Der er derfor beregnet et nyt separat gebyr for en bigbag-ordning for beklædningsplader.
Gebyret for private og erhverv er beregnet ud fra samme principper som bigbag-ordningen for tagplader.
Servicetjek af eksisterende gebyrer
På baggrund af de fastsatte handlinger i kommunens affaldsplan under indsatsområde 1 om mere og bedre genanvendelse, har administrationen gennemført et servicetjek af gebyrsammensætningen for husholdningerne.
Servicetjekket har omfattet:
- Uopdelte hjulbeholdere til indsamlingsblandingerne.
- Differentieret genbrugspladsgebyr for etageboliger og øvrige boliger
Administrationen vurderer på baggrund af servicetjekket, at der på nuværende tidspunkt ikke er grundlag for at ændre de eksisterende gebyrer.
Producentgebyr for emballageaffald
Administrationen har for 2026 ikke lavet en ny beregning af producentgebyrerne for emballageaffald, men i stedet pristalsreguleret gebyrerne for 2025.
Årsagen er, at budgettet for 2026 ikke har ændret sig væsentligt. Samtidig er der endnu ikke hverken sendt den første opkrævning af producentgebyrerne eller opgjort de reelle omkostninger ved håndteringen af det indsamlede affald. Så der er ingen konkrete erfaringer at trække på, som ville være relevant at regulere budgettet eller beregningen efter.
De fastsatte producentgebyrer for 2026 er vedlagt som bilag.
Lovgrundlag og juridisk vurderingAffaldsbekendtgørelsen, Affaldsaktørbekendtgørelsen og Emballagebekendtgørelsen.
ØkonomiAffaldsområdet er et brugerfinansieret område.
EffektvurderingIngen bemærkninger.
IndstillingAdministrationen indstiller at Teknik- og Miljøudvalget samt Økonomiudvalget anbefaler Byrådet, at:
- Gebyrerne godkendes, og indarbejdes i det samlede takst- og gebyrblad.
Teknik- og Miljøudvalget anbefaler administrationens indstilling godkendt.
Kopier link til punktet - Print
3 : Udkast til reviderede affaldsregulativer
Sagsnr: 25-005608
SagsfremstillingNærværende dagsorden vedrører udkast til Ringkøbing-Skjern Kommunes Regulativ for
Husholdningsaffald og Ringkøbing-Skjern Kommunes Regulativ for Erhvervsaffald.
Udkast til de reviderede regulativer er udarbejdet på baggrund af
• Den gældende affaldslovgivning gennem NSTAR
• Den politiske beslutning, som Teknik- og Miljøudvalget traf den 24. juni 2025, vedrørende etablering af en kommunal bringeordning for forbrændingsegnet erhvervsaffald.
På tværs af regulativerne er der fokus på, at der ikke modtages medicinrester og kanyler i miljøkasserne og på genbrugspladserne. I Husholdningsregulativet har dette været gældende, det er blot tydeliggjort, og i udkastet til erhvervsregulativet er der tale om en foreslået ændring.
Borgere skal allerede nu aflevere medicinrester og kanyler på apoteket, mens erhverv, hvis ændringen vedtages, vil skulle finde en privat renovatør, som modtager klinisk risikoaffald.
De foreslåede ændringer skyldes et sikkerhedsmæssigt behov for at minimere risikoen for, at medarbejdere får stikskader og skal igennem revaccinationsprogram samt uvished omkring sygdom.
Øvrige AFLD-kommuner har samme praksis.
På tværs af regulativerne er eternit- og asbest-paragrafferne desuden opdaterede, så retningslinjer for aflevering og afhentning skal findes på www.rksk.dk.
På tværs af regulativerne er det yderligere gjort specifikt, at "en mindre mængde jord", som kan afleveres på genbrugspladserne, er 1 m3 jord, således, at der er overensstemmelse med Ringkøbing-Skjern Kommunes Regulativ for Jordstyring.
Det er værd at bemærke, at der i udkastet til husholdningsregulativet er indføjet en ny paragraf, som åbner muligheden for forsøgsordninger. På nuværende tidspunkt har administrationen ikke tanker om konkrete forsøgsordninger.
Der er desuden foretaget mindre sproglige ændringer i bilaget Anbringelse af beholdere.
I udkastet til erhvervsregulativet er den vedtagne bringeordning for forbrændingsegnet erhvervsaffald indføjet.
Ændringerne i de relevante paragraffer er beskrevet i bilaget "Foreslåede ændringer".
Procedure for vedtagelse af kommunale affaldsregulativer
Hvis Teknik- og Miljøudvalget godkender de nærværende udkast med eventuelle tilføjelser eller
ændringer, skal de i offentlig høring i fire uger på Ringkøbing-Skjern Kommunes hjemmeside,
hvorefter de igen vil blive præsenteret for Teknik- og Miljøudvalget.
Når Teknik- og Miljøudvalget har godkendt regulativerne med eventuelle rettelser fra høringen, skal
regulativerne godkendes af Byrådet, før de endegyldigt kan træde i kraft. Når regulativerne
godkendes af Byrådet vil de træde i stedet for det gældende Regulativ for Husholdningsaffald og det
gældende Regulativ for Erhvervsaffald.
Regulativerne er udarbejdet efter lovbestemte retningslinjer gennem Energistyrelsens portal NSTAR.
Visse dele af regulativerne består af obligatorisk tekst og andet af fritekst. Visse elementer vil først
kunne opdateres, når regulativet sendes til godkendelse ved Byrådet. Dette gælder for eksempel
navn på kontaktperson for regulativ med videre.
Opsætningen af dokumenterne sker automatisk gennem NSTAR og kan ikke ændres.
Affaldsaktørbekendtgørelsen og Affaldsbekendtgørelsen.
ØkonomiAffald og Genbrug er et brugerfinansieret område.
Ændringerne i regulativerne påvirker ikke direkte taksterne.
Ingen bemærkninger.
IndstillingAdministrationen indstiller, at Teknik- og Miljøudvalget beslutter at sende ændringer til regulativerne i høring.
Bilag- Udkast - Ringkøbing Skjern Kommunes Regulativ for Erhvervsaffald
- Udkast - Ringkøbing Skjern Kommunes Regulativ for Husholdningsaffald - red
- Bilag - Foreslåede ændringer
Teknik- og Miljøudvalget godkendte administrationens indstilling.
Kopier link til punktet - Print
4 : Stadeplads for pølsevognen på Ringkøbing Torv
Sagsnr: 22-018451
SagsfremstillingTeknik- og Miljøudvalget besluttede på sit møde den 25. april 2023 revideret reglement for stadepladser og udeservering i Ringkøbing.
Administrationen af stadepladser varetages af Ringkøbing Handelsforening sammen med udlejning af udearealer. Alle indtægter går til foreningen 'Musik på torvet'.
Pølsevognen på Torvet i Ringkøbing har ikke været en del af aftalen med handelsforeningen, pølsevognen er derfor opkrævet leje direkte af Rinkøbing-Skjern Kommune.
Ringkøbing Handelsforening har fremsendt en ansøgning om, at indtægterne fra udleje til Pølsevognen tilgår 'Musik på torvet', som de øvrige indtægter fra stadepladser og udeserveringsarealer. Foreningen henviser til, at det var en del af drøftelserne i forbindelse med udarbejdelsen af det reviderede reglement i 2023.
Handelsforeningen ansøger om, at alle indtægter fra 2025 og fremefter tilgår til 'Musik på torvet'. For 2025 er der pr. august opkrævet 13.954 kr. Den fremtidige lejeindtægt er dags dato på 1.744 kr. pr. md.
Den manglende indtægt finansieres inden for økonomiudvalgets budget.
Lovgrundlag og juridisk vurderingRingkøbing-Skjern Kommune fastsætter som ejer priserne for arealernes anvendelse.
Støtte til kulturelle formål, som for eksempel musik på torvet, er omfattet af kommunalfuldmagtsreglerne.
ØkonomiLejeindtægterne for Pølsevognen på Torvet i Ringkøbing er budgetlagt inden for Økonomiudvalgets ramme, når handelsstandsforeningen fremadrettet opkræver lejen, vil den manglende indtægt skulle finansieres inden for Økonomiudvalgets øvrige ramme.
EffektvurderingRingkøbing-Skjern Kommune ønsker attraktive, levende, grønne og funktionelle byer for borgere, virksomheder og gæster. Når en by har mange tilbud både til hverdagslivet og til, når det sker noget særligt, bliver byen mere levende og attraktiv.
Ringkøbing Handelstandsforenings administration af arealerne til fordel for 'Musik på torvet' medvirker til Ringkøbing-Skjern Kommunes ønske om attraktive og levende byer.
IndstillingAdministrationen indstiller, at Teknik- og Miljøudvalget anbefaler Økonomiudvalget, at
- lejen for pølsevognen på Torvet i Ringkøbing fremadrettet opkræves af Ringkøbing Handelsstandsforening og indtægterne herfra benyttes til 'Musik på torvet'.
- Ringkøbing Handelsstandsforening modtager 13.954 kr. som er opkrævet pølsevognen som leje pr. august 2025, beløbet bruges ligeledes til 'Musik på torvet'.
- den manglende lejeindtægt finansieres inden for Økonomiudvalgets budget.
Ingen bilag.
BeslutningTeknik- og Miljøudvalget anbefaler administrationens indstilling godkendt.
Kopier link til punktet - Print
5 : Fjernvarmepulje Ansøgning - Fjelstervang
Sagsnr: 25-017042
SagsfremstillingTeknik- og Miljøudvalget skal tage stilling til en ansøgning fra Fjelstervang Varme om 471.500 kr. fra kommunens varmepulje og videresende sagen til Økonomiudvalget.
Ringkøbing-Skjern Kommune har etableret en varmepulje på baggrund af en statslig bevilling. Denne skal understøtte udviklingen af lokale, kollektive og grønne varmeløsninger i mindre bysamfund og områder uden kollektiv varmeforsyning. Puljen har til formål at fremme omstillingen væk fra individuelle olie- og gasfyr og dermed bidrage til kommunens målsætning om en fossilfri varmeforsyning senest i 2040.
Der er 875.000 i fjernvarmepuljen. Disse stammer fra staten og er udmøntet til kommunerne som følge af en politisk aftale i Folketinget om at fremme udrulningen af fjernvarme i hele landet. Puljen kan yde tilskud til forundersøgelser, projektering og etablering af lokale fjernvarmeløsninger, hvor der er lokal opbakning og et dokumenteret potentiale.
Der arbejdes i øjeblikket med udbredelse af fjernvarme to steder i kommunen, Borris og Fjelstervang. I Fjelstervang vil forsyningen komme fra rørføring fra Kibæk Fjernvarme.
Den 29. april 2025 godkendte Teknik- og Miljøudvalget varmeprojekt for fjernvarmeforsyning af Fjelstervang. Varmeprojektet forudsætter 75% tilslutning af forbrugerne i projektområdet. Fjelstervang Varme har efterfølgende arbejdet med indsamling af bindende tilmeldinger.
Ansøgningen fra Fjelstervang lever op til retningslinjerne for den kommunale varmepulje. Se disse her: RKSK Varmepulje
Lovgrundlag og juridisk vurderingIngen bemærkninger.
ØkonomiDer kan ansøges om op til 500.000 kr. fra kommunens varmepulje. Fjelstervang Varme har indhentet flere tilbud på projektering, udbud og kontrahering (se bilag).
Fjelstervang Varme har i ansøgningen ansøgt om 500.000 kr. Dette er på baggrund af mail af justeret til 471.500 kr. inkl. moms, da dette er det billigste tilbud på projektering, udbud og kontrahering, de har modtaget.
Man er indforstået med, at tilskuddet gives i form af et lån, der skal tilbagebetales, såfremt projektet realiseres.
Fjelstervang Varme har fået tilsagn fra Energistyrelsen om tilskud fra Energistyrelsens Fjernvarmepulje (bilag).
EffektvurderingProjektet er i tråd med kommunens Klimapolitik 2023-2026, vedr. udfasning af naturgas inden 2040.
Kommunens Klimapartnerskabsaftale med varmeværkerne, stiler mod 100 % VE i 2030. Varmeprojektet er et skridt i den rigtige retning, da den omstiller et naturgasområde til fjernvarme baseret på vedvarende energi.
IndstillingAdministrationen indstiller til Teknik- og Miljøudvalget, at anbefale Økonomiudvalget at yde tilsagn til ansøgningen fra Fjelstervang Varme på 471.500 kr. fra kommunens varmepulje.
Tilsagnet gøres betinget af, at der opnås 75 % bindende tilsagn i forsyningsområdet, da dette er en af betingelserne i projektgodkendelsen.
Bilag- Fjernvarme til Fjelstervang - spørgsmål til ansøgningsmateriale
- Fjelstervang-Budget-for-projektering-udbud-og-kontrahering (1).xlsx
- Projektbudget-Energistyrelsen
- Projektforslag
- Vedtægter-Fjelstervang-Varme-AMB - underskrevet
Teknik- og Miljøudvalget anbefaler administrationens indstilling godkendt.
Kopier link til punktet - Print
6 : Igangsætning af plangrundlag for smedeværksted ved Tarmvej i Sdr. Bork
Sagsnr: 25-006743
SagsfremstillingKommunen har modtaget en ansøgning om udarbejdelse af et kommuneplantillæg ved Tarmvej i Sdr. Bork By. Der skal tages stilling til, om planlægningen skal igangsættes.
Projektet
Ansøger ønsker at opføre en bygning til smede- og VVS-virksomhed på en del af matrikel nr. 22c, Sdr. Bork By, Sdr. Bork.
Den ønskede bygning skal rumme værksted, lager, kontor og personalefaciliteter og udgør ca. 1.380 m². Det ansøgte grundareal er ca. 8.100 m².
Se vedlagte projektbeskrivelse og bilag 1.

Figur 1. Kortet viser projektområdets afgrænsning markeret med gult og den foreslåede placering af bygningen markeret med sort skravering.
Planforhold
Kommuneplantillæg
Projektet kræver udarbejdelse af et kommuneplantillæg, da området i dag ikke er omfattet af rammer. Tillægget skal udlægge et nyt rammeområde til erhverv. For at fastholde det samlede areal til erhverv i kommuneplanen anbefaler administrationen, at et tilsvarende areal udtages fra rammeområde 44er006, som i dag henligger ubebygget. Projektområdet fastholdes i landzone.

Figur 2. Kort over kommuneplanrammer, herunder projektområdet i den nordlige del og rammeområde 44er006 i sydlige del markeret i sort.
Landzonetilladelse
Byggeriet kræver efterfølgende landzonetilladelse. Administrationen vurderer, at det ansøgte byggeri ikke er lokalplanpligtigt, da det er et mindre areal og bebyggelsen kan opføres som en naturlig forlængelse af byen med en klar afgrænsning mod det åbne land. Byggeriet placeres i tilknytning til eksisterende erhverv, men ligger også tæt på boliger. Hensynet til naboer og offentligheden forventes håndteret via kommuneplantillægget og landzonetilladelsen.
Miljøvurdering
Der skal gennemføres en screening af planforslaget for at vurdere behovet for miljøvurdering.
Opmærksomhedspunkter
Virksomheden arbejder med bl.a. reparation af landbrugsmaskiner og plæneklippere. Hensynet til nærliggende boliger skal indarbejdes i planlægningen. Overkørsel til grunden og trafikforhold i øvrigt skal desuden afklares.
Håndtering af spildevand skal undersøges og kan medføre ændringer i spildevandsplanen.
Administrationens anbefaling
Administrationen anbefaler, at planlægningen igangsættes for det ansøgte. Administration anbefaler i øvrigt, at eksisterende rammeområde 44er006 til erhverv reduceres med et tilsvarende areal. Se figur 2. Rammeområde 44er006 henligger ubebygget og administrationen er ikke bekendt med at der er aktuelle ønsker om udnyttelse. Dette skal dog afdækkes i processen.
Den videre proces
Administrationen anbefaler, at der indkaldes bemærkninger, ideer og forslag, hvormed naboer samt lodsejere i eksisterende rammeområde 44er006 kan blive hørt.
Planloven
Lov om miljøvurdering af planer og programmer og af konkrete projekter (VVM)
ØkonomiIngen bemærkninger.
EffektvurderingPlanlægningen vil understøtte udviklingen af erhvervslivet i området og kan medvirke til at fastholde arbejdspladser i området.
IndstillingAdministrationen indstiller, at Teknik- og Miljøudvalget anbefaler, at Økonomiudvalget godkender:
- At planlægningen for et erhvervsområde ved Tarmvej i Sdr. Bork igangsættes for ansøgers regning og risiko, med udgangspunkt i de administrative anbefalinger.
- At der indkaldes bemærkninger, ideer og forslag fra naboer og interessenter.
Teknik- og Miljøudvalget anbefaler administrationens indstilling godkendt.
Kopier link til punktet - Print
7 : Endelig vedtagelse af plangrundlag for udvidelse af Vestjysk Biogas, Arnborgvej 23A, Skjern
Sagsnr: 23-000490
SagsfremstillingFormålet med dagsordenen er, at Lokalplan nr. 519 og Tillæg nr. 3 til Kommuneplan 2025-2037 vedtages endeligt.
Byrådet besluttede den 8. april 2025 at vedtage forslag til Lokalplan nr. 519 og Tillæg nr. 59 til Kommuneplan 2021-2033 med tilhørende miljørapport, se vedlagt i bilag 1A og 1B.
Formålet med plangrundlaget er at sikre, at området kan anvendes til teknisk anlæg, herunder biogasanlæg. Virksomheden ønsker en udvidelse af det eksisterende biogasanlæg til yderligere behandlingskapacitet med tilhørende teknologier samt en udvidelse af pumpeledningsnetværket mod syd til de nærmeste leverandører. Ansøger oplyser, at biogasanlægget efter udvidelsen kan behandle cirka 250.000 tons biomasse pr. år. Arealudlægget til planområdet udvides fra 3,2 ha til ca. 5,5 ha.
Plangrundlaget har været fremlagt i offentlig høring i perioden fra d. 11. april til og med d.10. juni.
Resultat fra offentlighedsfasen
Der er i offentlighedsfasen modtaget i alt tre høringssvar, herunder et svar fra Brand og Redning MidVest og fra fire fra borgere fordelt på to høringssvar.
Høringssvarene handler primært om:
- Præcisering af Brandhåndtering
- Cykelsti på Arnborgvej fra Kjelstrupsvinget til Borris
- Miljøpåvirkningen af naboerne (støj og lugt)
- Vedligeholdelse af afskærmende beplantning
På baggrund af de indkomne bemærkninger anbefaler administrationen, at der foretages ændringer i forhold til de offentliggjorte planforslag.
I gennem konstruktiv dialog med Brand og Redning MidtVest er der aftalt, at lokalplanen præciseres i forhold til hvilket minimumstryk og vandydelse brandhaner skal kunne levere til lokalplanområdet samt i hvilket delområde nødvendige brandhaner skal etableres.
Yderligere bemærkninger har ikke givet anledning til ændringer i plangrundlaget men ønsket om etablering af en cykelsti på Arnborvej fra Kjelstrupsvinget til Borris er videregivet til kommunens vejafdeling. Ønsket indgår allerede i dag i Ringkøbing- Skjern kommunens prioritering af fremtidige stiprojekter.
De konkrete ændringerne fremgår af vedlagte notat med behandling af bemærkninger. De indkomne bemærkninger og notat med administrationens forslag til svar er vedlagt som bilag 2 og 3.
Administrative bemærkninger til ændringerne
Kommuneplan
Byrådet vedtog den 20. maj 2025 kommuneplan 2025-2037. Kommuneplan var derfor under revision og derfor har plangrundlaget forholdt sig til retningslinjerne, som fremgår af både Kommuneplan 2021-2033 og Kommuneplan 2025-2037. I den forbindelse vil nærværende kommuneplantillæg nr. 59 ændre tillægsnummer ved endelig vedtagelse til kommuneplantillæg nr. 3 for at følge den nye kommuneplan. Kommuneplantillægget konsekvensrette derfor også, så den kun forholder sig til gældende kommuneplan. Derfor udtages redegørelsesteksten, som forholder sig til kommuneplan 2021-2033.
De tilrettet versioner af lokalplan 519 og kommuneplantillæg 3, kan ses i henholdsvis bilag 4A og 4B.
Miljøvurdering af planer og projekt
Der har været gennemført en miljøvurdering (bilag 5) af planerne og projektet. Miljøkonsekvensrapporten, udkast til projekttilladelse (VVM-tilladelse) har været i offentlig høring.
Administrationen anbefaler at projekttilladelsen godkendes uden ændringer (bilag 6).
Miljørapporten viser at biogasanlægget kan overholde de vejledende støj- og lugtgrænseværdier hos samtlige naboer uden behov for afværgeforanstaltninger. Det vurderes derfor at der ingen væsentlige påvirkninger ved realisering af biogasanlægget, som plangrundlaget giver mulighed for.
Det fremgår også at biogasanlægget ikke vil have en væsentlig påvirkning af landskabet og de visuelle forhold. Biogasanlægget opføres i farver og design som det nuværende anlæg, således anlægget opleves som en helhed i landskabet. Anlægget vil dog fortsat fremstå som et markant element i det nære landskab ligesom det eksisterende anlæg.
Rapporten beskriver desuden anlæggets overvågningssystem som bl.a. sikrer, at der ikke sker utilsigtet store eller små lækager af biomasse fra tankene.
Med afsæt i overstående og de indkomne bemærkninger er der udarbejdet et udkast til en sammenfattende redegørelse, som bl.a. beskriver, hvordan miljøhensyn er inddraget i planen, hvordan miljøvurderingen og de indkomne bemærkninger tages i betragtning, begrundelse for valg af alternativ samt hvordan kommunen vil overvåge de væsentligste indvirkninger på miljøet, se bilag 7.
Øvrige godkendelser
Anlægget vil skulle godkendes til at have gasoplag mellem 10 og 50 tons. Derfor er der lovgivningsmæssigt krav om, at anlægget skal miljøgodkendes, da det bliver en kolonne II virksomhed. Det betyder at der sættes vilkår til anlægges etablering og drift samt at anlægget skal risikovurderes og sikkerhedsgodkendes af kommunen.
Inden udvidelsen af Vestjysk Biogas må ibrugtages, skal der foreligge et godkendt og etableret vejprojekt i forbindelse med den nuværende højresvingsbane, som skal udvides med 20 meter.
Lovgrundlag og juridisk vurderingPlanloven.
Lov om miljøvurdering af planer og programmer og af konkrete projekter (VVM).
Lov om offentlige veje m.v.
Det vurderes, at der via Vejloven kan pålægges ansøger/bygherre krav om at etablere et kanaliseringsanlæg bestående af en udvidelse af højresvingsbanen på Arnborgvej. Ansøger/Bygherre er indforstået med at udvide højresvingsbanen.
EffektvurderingBiogasanlægget vil bidrage positivt til klimaeffekten grundet anlæggets håndtering af husdyrgødning samt muligheden for CO2-fangst. Det vurderes, at anlægget samlet kan bidrage til en CO2-reduktion på cirka 48.000 ton CO2-ækvivaltenter pr. år, hvoraf anlægget i dag bidrager med cirka 15.000 ton CO2-ækvivaltenter. Anlægget vil derfor bidrage med en forøget reduktion på 33.000 ton årligt. En gennemsnitlig dansker udleder omkring 13 ton CO2-ækvivalenter årligt. Den samlede CO2-reduktion på anlægget vil derfor kunne svare til udledningen fra 3.692 personer.
Realisering af planen vil understøtte Ringkøbing-Skjern Kommunes klimapolitik. Klimapolitikken beskriver, at vi skal være 100 % CO2-neutrale i 2050 og i 2030 have reduceret vores samlede udledning med 70 % i forhold til perioden 1990-2030. Afgasning af husdyrgødning medfører store CO2-reduktioner i landbruget og en øget udnyttelse af husdyrgødningen. Afgasningen af biomasser sker uden tab af næringsstoffer som kvælstof, fosfor og kalium, og derved sker der ikke tab af næringsstoffer, hvor bandet andet fosfor er en knap ressource.
IndstillingAdministrationen indstiller, at Teknik- og Miljøudvalget samt Økonomiudvalget anbefaler Byrådet, at:
- Tillæg 3 til Kommuneplan 2025-2037 og Lokalplan 519 for et område til for et område til teknisk formål (biogasanlæg) ved Arnborgvej, Borris vedtages endeligt med de ændringer, der fremgår af notatet med behandling af høringssvar (bilag 2) og er indarbejdet i tilrettet planforslag (bilag 4A og 4B)
- Notat med behandling af høringssvar godkendes og anvendes til besvarelse af høringssvar
- Den sammenfattende redegørelse færdiggøres på baggrund af vedtagelsen af planerne.
- Der meddeles tilladelse til projekt (§25 tilladelse) for udvidelse af Vestjysk biogasanlæg
- Bilag 1A Forslag til Lokalplan nr. 519 (som har været i offentlig høring)
- Bilag 1B Forslag til Kommuneplantillæg nr. 59 (som har været i offentlig høring)
- Bilag 2 Modtagende høringssvar
- Bilag 3 Notat med behandling af bemærkninger
- Bilag 4A Lokalplan nr. 519 (tilrettet version på baggrund af høringssvar)
- Bilag 4B Kommuneplantillæg nr. 3 (tilrettet version på baggrund af høringssvar)
- Bilag 5 Miljørapport inkl bilag
- Bilag 6 Udkast til projekttilladelse
- Bilag 7 Udkast sammenfattende redegørelse
Teknik- og Miljøudvalget anbefaler administrationens indstilling godkendt.
Ole Nyholm Knudsen deltog ikke i behandlingen af sagen.
Kopier link til punktet - Print
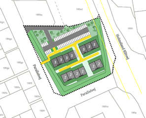
8 : Anmodning om igangsættelse af plangrundlag for et område til boligformål ved Holmsland Klitvej, Hvide Sande
Sagsnr: 25-007928
SagsfremstillingFormålet med dagsordenen er at igangsætte planlægningen for et område til helårsbeboelse til rækkehuse og/eller etagebyggeri op til 3 etager på Holmsland Klitvej 1 i Hvide Sande.

Luftfotoet viser lokalplanområdets afgrænsning med rødt.
Baggrund
Den 16. april godkendte Byrådet bevillingen for 2024 til Jordforsyning i kommunen. Med i bevillingen godkendte Byrådet også, at der blev frigivet et beløb på 0,4 mio. kr. i 2024 til at påbegynde udarbejdelse af et plangrundlag for området, herunder udgifter til de relevante forundersøgelser som f.eks. støjredegørelser.
Beskrivelse af projektet
Ringkøbing-Skjern Kommune ejer størstedelen af lokalplanområdet på Holmsland Klitvej 1. Administrationen anbefaler, at der udarbejdes et plangrundlag til boligformål for matrikel 186hk, Søgaard Hgd., Holmsland Klit, Hvide Sande, samt en del af matr.nr. 186ad Søgård Hgd., Holmsland Klit, der er udlagt til vejareal.
Arealet har tidligere været udlagt til rekreativt område og den nordlige del bruges i dag som adgangsvej for de 6 ejendomme nord for planområdet. Projektområdet udgør i alt et areal på 9.192 m2.
Administrationen anbefaler, at planlægningen sigter på at give mulighed for at opføre rækkehuse (kompakt tæt-lav bebyggelse) og/eller etagebebyggelse(kompakt-høj). På nedenstående skitse for bebyggelsen er området udlagt som etagehuse, der danner lukkede gårdrum og bebyggelsen afskærmer for den sydvestlige vind.
Boligenhederne er ca. på 99-108 m2. Etagehusene tænkes opført i 2-3 etager.
Der er lagt op til private terrasser/altaner til hver boligenhed, og administrationen lægger op til at etablere fællesarealer i de lukkede gårdrum eller i det nordvestlige område af ejendommen.
Administrationen foreslår endvidere, at der udlægges fælles parkeringsarealer mod nord, mens stier leder ned til de enkelte boliger.
Der er i dag adgang til planområdet fra vest via Parallelvej samt fra øst via Holmsland Klitvej. I forbindelse med den kommende planlægning foreslås det, at den eksisterende adgangsvej fra Holmsland Klitvej lukkes. I stedet foreslås det, at adgang til området fremadrettet udelukkende sker via Parallelvej.
Lukningen af adgangsvejen fra Holmsland Klitvej skaber mulighed for at etablere en sammenhængende og effektiv støjafskærmning mod vejen. Samtidig vil boligvejen fremstå som en lukket vej uden gennemkørende trafik, hvilket bidrager til øget trafiksikkerhed og mindre støj for de kommende og nuværende beboere.


Figurerne viser eksempler på disponeringen af området. I bilag 1 er der signaturforklaring.
Områdets nuværende anvendelse og karakter
Projektområdet ligger i den nordlige del af Hvide Sande. Projektområdet er omkranset af veje mod øst, syd og vest, og der er lavet støjvolde langs Parallelvej og Holmsland Klitvej.
Boligbebyggelsen mod øst og vest består af parcelhuse til helårsboliger og blandet bolig og erhverv. Området syd for projektområdet er udlagt til tæt-lav bebyggelse. Bebyggelsen mod nord består af fritliggende boliger i landzone.
Området har tidligere været anvendt til rekreative formål i form af afholdelse af Sankt Hans og andre lignende aktiviteter. Disse aktiviteter er flyttet andre steder hen i Hvide Sande. Et klubhus i området har været anvendt af en motorcykelklub. Motorcykelklubben er ved at afvikle sine aktiviteter i området og der er indgået en aftale med motorcykelklubben om, at de kan anvende området indtil 1. september 2025.
Der er et behov for flere boliger i Hvide Sande, men det er vanskeligt at finde arealer til dette, da byen er omkranset af vand og beskyttet natur. I forbindelse med udarbejdelse af helhedsplan for byen blev området således udpeget som en mulighed for fortætning med plads til helårsbeboelse.
Planforhold
Tidligere var området udlagt til rekreative formål.
I forbindelse med revisionen af kommuneplanen 2025-2037 er kommuneplanrammen ændret til boligformål med udlæg af en ny ramme, 23bo014. Området vil i den nye ramme kunne anvendes til tæt-lav bebyggelse og etagebebyggelse. Den maksimale bebyggelseshøjde er 10,5 m og max 3 etager. Den nordlige del er omfattet af kommuneplanramme 23bo012, der udlægger området til åben-lav boligbebyggelse. Området ligger i landzone.
Der er ingen lokalplan for området og en udnyttelse af området til kompakt tæt-lav bebyggelse og /eller kompakt høj etagebebyggelse kræver udarbejdelse af en lokalplan.
Området er beliggende i landzone. Ved lokalplanlægningen vil området blive overført til byzone. Mod vest, syd og øst for området er der boligområder i byzone. Der vil være behov for at udarbejde et tillæg til kommuneplanen, da arealet overføres fra landzone til byzone og der inddrages areal fra kommuneplanrammen 23bo012, hvor anvendelsen ændres fra åben-lav boligbebyggelse til kompakt lav og kompakt høj bebyggelse.
Administrationen anbefaler, at der tilføjes som bestemmelse i en ny lokalplan, at boligerne er til helårsbeboelse og derfor ikke kan anvendes alene til fritidsbrug. En sådan bestemmelse om helårsbeboelse vil være i overensstemmelse med intentionerne i helhedsplanen for Hvide Sande.
Miljøvurdering
I forbindelse med planlægningen skal der gennemføres en screening af planforslaget samt en
screening af det konkrete projekt (VVM).
En bebyggelse med en højde på 14–15 meter vil kræve en rammeændring og vurderes at være uforenelig med landskabsinteresserne. Området er kendetegnet ved åbne udsigter over Ringkøbing Fjord, det omgivende klitlandskab og det brede kystområde. Disse udsigter er en væsentlig del af områdets visuelle karakter og rekreative værdi. For at bevare kystlandskabets visuelle integritet og de eksisterende udsigter vurderes byggeri i op til 10,5 meters højde som den øvre grænse for området.
Der er forud for denne igangsætning foretaget en række undersøgelser.
Museumsundersøgelse
Området er frigivet af museet og anlægsarbejde kan igangsættes.
Støjundersøgelse
Undersøgelserne viser, at det er muligt at planlægge for boliger i området, da området ikke er støjplaget. Se bilag 2.
Grundvandsinteresser og geoteknisk undersøgelse
Der kan forekomme højtstående grundvand i området, svarende til 0,4-0,7 m under terræn. Det betyder, at der i forbindelse med anlægsarbejdet kan blive behov for grundvandssænkning. Se bilag 3.
Landskabs- og naturinteresser
I forbindelse med planlægningen skal der redegøres for påvirkningen af kysten. Planloven fastlægger, at der skal tages særlige hensyn til natur- og landskabsmæssige interesser langs kysten. Lokalplanen kan gennem bestemmelser om farver, materialer og bygningshøjder understøtte dette. Det anbefales desuden at udarbejde visualiseringer som illustrerer byggeriets påvirkning af kysten samt skyggediagrammer, for at redegøre for eventuelle påvirkninger på boligerne nord for området.
Området er undersøgt for, om det kan være levested for arter, der fremgår på Habitatbekendtgørelsens bilag IV. Der er ikke fundet nogen arter, og der er ikke registreret fredet natur i området. Se bilag 4.
Vurdering og anbefaling
Der er en mangel på areal i Hvide Sande til nye boligudlæg. Det nye boligområde med tæt-lav og/eller etagebebyggelse vil give mulighed for en øget boligmasse i Hvide Sande. Det er vigtigt, at der skabes et attraktivt bomiljø, hvor der skabes læ for vestenvinden, og hvor der er attraktive fællesarealer for beboerne.
I kommuneplanen står endvidere, at Byrådet ønsker at arbejde for en fortætning i Hvide Sande. Derfor anbefaler administrationen at der bygges i etager for hele området.
Kommuneplankategorierne, som anbefales for dette område er kompakt tæt-lav og/eller kompakt høj. De to boligtyper kompakt lav og kompakt høj er beskrevet nedenfor.

Administrationen anbefaler, at de enkelte boligenheders arkitektur og udtryk tilpasses området, med fokus på et materiale og farvevalg der understøtter nærheden til kystlandskabet. Det kan være træ og tegl i brunlige og rødlige nuancer som forekommer i naturen.
Den vedlagte disponeringsplan er et udkast, og der kan ske tilretninger af planen i forbindelse med planprocessen.
Den videre proces
Administrationen anbefaler en foroffentlig høring i forbindelse med planprocessen, i og med, at der ønskes en fortætning af bygningsmassen med boliger i op til tre etager. Ejerne af den nordlige del af planlægningsarealet (vejstykke mod nord, matrikel 186ad) er orienteret om planlægningen af arealet og er umiddelbart ikke interesseret i planlægningen for deres del af området. Administrationen anbefaler at afvente eventuelt indskrænkning af området til efter en foroffentlig høring. Administrationen påtænker at indkalde de 6 lodsejere mod nord til møde i forbindelse med den foroffentlige høring. Lokalplanafgrænsningen kan dermed eventuelt tilpasses og indskrænkes til matrikel 186hk, hvis det vurderes, at være den bedste løsning i planlægningsprocessen. Afgrænsningen af lokalplanområdet bliver afklaret som en del af processen, hvor naboerne også vil blive inddraget.
Lovgrundlag og juridisk vurderingPlanloven.
Lov om miljøvurdering af planer og programmer og af konkrete projekter (VVM).
ØkonomiDer blev i 2024 bevilget 400.000 kr. til jordforsyningen til forundersøgelser af området og udarbejdelse af lokalplanen. Når lokalplanen for området er udarbejdet forventes det, at grunden kan sælges til en betydeligt højere pris end uden plangrundlag.
EffektvurderingEn realisering af planen vil medvirke til opfyldelse af Plan- og Udviklingsstrategi 2023. Af strategien fremgår, at byrådet ønsker at fokusere på nærheden og adgangen til naturen og styrke borgernes glæde ved at bo i Naturens Rige ved at give plads til boliger tæt på naturen.
Samtidig vil lokalplanen også understøtte ambitionen i Plan- og Udviklingsstrategi 2023 om, at kommunen vil understøtte en variation i boligmassen og understøtte sociale fællesskaber.
IndstillingAdministrationen indstiller, at Teknik- og Miljøudvalget godkender at:
- Planlægningen for et område til boligformål ved Holmsland Klitvej i Hvide Sande igangsættes
- At der afholdes en foroffentlig høring.
- Bilag 1 - Disponeringsplaner
- Bilag 2 - Støjredegørelse
- Bilag 3 - Geoteknisk undersøgelse
- Bilag 4 - Uddrag af miljøvurdering for KP25 for området
Teknik- og Miljøudvalget godkendte administrationens indstilling.
Kopier link til punktet - Print
9 : Offentliggørelse af et ændret planforslag for et område til teknisk anlæg (Renseanlæg) ved Ringkøbing
Sagsnr: 24-009219
SagsfremstillingFormålet med dagsordenen er en fornyet politisk godkendelse af forslag til plangrundlag for modernisering af renseanlægget i Ringkøbing. Det drejer sig om forslag til lokalplan, kommuneplantillæg og miljøvurdering.
Baggrund
Efter byrådets politiske godkendelse af det oprindelige forslag den 17. juni, har forsyningen fremlagt et alternativt forslag til håndtering af højvandsikring i området. Den nye løsning indebærer en klimasikring uden mur og vold til afgrænsning af anlægget uden at anlægget bliver højere. Den nye løsning indebære,r at anlægget kan være i drift ved vandstandsstigning op til 2,11 meter. Denne tilgang vurderes som både mere robust og fleksibel sammenlignet med den tidligere plan om etablering af en fysisk afgrænsning i form af betonmure og jordvolde omkring hele området langs fjorden og Vonå. Løsningen tager fortsat udgangspunkt i et klimascenarie med en 100-årig tidshorisont og har til formål at sikre området mod fremtidige havvandsstigninger og ekstreme vejrhændelser, hvor fjordvand kan trænge ind og skabe ødelæggelser eller overløb af spildevand.
Samtidig vurderes denne løsning at være mere landskabeligt integrerbar, idet terrænet kan opbygges naturligt gennem beplantning, hvilket minimerer behovet for hårde konstruktioner. Dette bidrager til en mere harmonisk overgang i højden og giver en visuel tilpasning til omgivelserne. Desuden forventes løsningen at være økonomisk fordelagtig, da den indebærer lavere anlægsomkostninger end traditionelle sikringsanlæg med mure og volde.
Derfor anbefaler administrationen, at bestemmelserne vedrørende terræn og koter i plangrundlaget præciseres inden offentlig bekendtgørelse af planforslaget. Konkret fastholdes de maksimale bygge- og anlægshøjder, men samtidig gives fleksibilitet til terrænregulering.
Planforslaget
Lokalplanen skal muliggøre modernisering og udvidelse af renseanlægget ved Smed Sørensens Vej i Ringkøbing. Anlægget er i dag slidt, og der er behov for optimering af renseprocesser og renovering af et forsinkelsesbassin. Fremover skal anlægget kunne modtage spildevand fra flere mindre renseanlæg, i Spjald, Grønbjerg, Tim og Stadil, som fastlagt i Spildevandsplanen. Det betyder, at kapaciteten og teknologien skal opgraderes, så anlægget kan fungere som et samlet, effektivt knudepunkt.
Området opdeles i to delområder:
- Delområde I (vest): Tankanlæg og tekniske installationer op til 4 meters højde over terræn.
- Delområde II (øst): Byggeri op til 8,5 meter i to etager samt tekniske anlæg og tanke over terræn – enkelte elementer må være højere. Overvågningsmaster op til 12 meter tillades.
Det var oprindeligt planen at etablere en beplantet jordvold på 1–1,5 meter langs den nordvestlige og nordøstlige afgrænsning af området for at skabe afskærmning og visuel afgrænsning. Resten af området skulle beskyttes mod højvande med en betonmur med skydelåger, i højder fra 0,5 til 1 meter.
Billede viser den oprindelige klimasikringsløsning.
Den justerede løsning, som baserer sig på, at tanke og andre kritiske installationer placeres og indrettes, så de kan tåle en vandstandsstigning på op til kote 2,11. Dette skal ske samtidig med, at byggeriet/anlæggets totalhøjde ikke overstiger henholdsvis 8,5 m og 4 m over terræn. Administrationen vurderer det som en mere hensigtsmæssig tilpasning end den tidligere løsning og planudkast med faste konstruktioner som jordvolde og betonmure.
Landskabelig fordel og visuel overgang
Landskabeligt rummer den justerede løsning også visse fordele. Ved at undgå synlige og markante anlæg som volde og mure, åbnes der mulighed for at skabe en mere naturlig overgang fra det flade terræn til de højereliggende bygningsdele. Dette kan understøttes gennem beplantning, som både styrker områdets visuelle udtryk og integrerer bebyggelsen bedre i omgivelserne.
Træer og buske i randzonerne kan desuden bidrage til at afbløde overgangen mod byen, hvilket er særligt relevant i flade landskaber, hvor bebyggelse ellers hurtigt fremstår dominerende.
Overordnet set fremstår den justerede løsning som et relevant og afbalanceret alternativ. Det anbefales derfor at arbejde videre med denne tilgang, da den – samlet set – bidrager til en funktionel og æstetisk balanceret løsning for området.
Miljøvurdering
Planforslaget er blevet miljøvurderet med fokus på klimaforhold (klimatilpasning) og landskabets påvirkning. Lugtgener er ikke vurderet, da Ringkøbing-Skjern Forsyning har oplyst, at de planlægger at nedlægge biogasdelen af renseanlægget – den primære kilde til lugt i dag. Det betyder også, at det nye plangrundlag ikke giver mulighed for at etablere en ny biogasfunktion i fremtiden. I forhold til vandrammedirektivet og beskyttelsen af vandmiljøet vurderes det, at planens realisering ikke hindrer målopfyldelse, da udledningstilladelsen forbliver uændret ved planlægningen. Den overordnede konklusion er, at planen ikke vurderes at medføre væsentlige miljøpåvirkninger.
Når der foreligger mere konkrete planer for ombygningen, vil Ringkøbing-Skjern Forsyning indsende en projektansøgning til kommunen. Eventuelle ændringer i udledningstilladelsen vil blive vurderet efter miljøvurderingsloven, og projektet vil som minimum skulle miljøscreenes.
Den videre proces
Ved sidste politiske behandling af lokalplanforslaget blev det besluttet, at der ikke afholdes borgermøde i forbindelse med den offentlige høring. Administrationen vurderer at det reviderede forslag til plangrundlag ikke giver anledning til at ændre den beslutning.
Lov om planlægning
Lov om miljøvurdering af planer og programmer og af konkrete projekter (VVM)
ØkonomiIngen bemærkninger.
EffektvurderingRealiseringen af plangrundlaget vil medvirke til at understøtte realisering af Spildevandsplanen.
Gennem nedlæggelsen af flere mindre spildevandsanlæg og det nye plangrundlag vil desuden give mulighed for modernisering og forbedringer af anlægget.
IndstillingAdministrationen indstiller, at Teknik- og Miljøudvalget og Økonomiudvalget anbefaler Byrådet, at:
- At administrationen bemyndiges til at præcisere bestemmelser vedrørende kote- og terrænregulering forud for offentliggørelse af planforslaget.
- At de reviderede forslag til Lokalplan nr. 520 og Tillæg nr. 4 til Kommuneplan 2025-2037 for et område til teknisk anlæg, herunder renseanlæg, i Ringkøbing inklusiv den tilhørende miljørapport vedtages og fremlægges i offentlig høring i 8 uger.
Teknik- og Miljøudvalget anbefaler administrationens indstilling godkendt.
Kopier link til punktet - Print
10 : Lodbergsvej 26, 6950 - Dispensation til køb af P-pladser via P-Fonden
Sagsnr: 25-002077
SagsfremstillingTeknik- og Miljøudvalget skal tage stilling til, om der kan meddeles dispensation fra kravet i Lokalplan 370, §8.4, om etablering af samtlige parkeringspladser på egen grund.
Der søges samtidig om godkendelse af, at det resterende parkeringsbehov kan opfyldes ved betaling til kommunens P-fond. De manglende pladser tænkes dækket af fremtidige offentlige parkeringsarealer ved Nyhavn.
Sagen blev forelagt Teknik- og Miljøudvalget den 29. april 2025. Udvalget ønskede på mødet yderligere oplysninger og vurderinger til brug for den videre behandling, hvorfor sagen var til behandling igen.
Sagen blev herefter forelagt Teknik- og Miljøudvalget d. 10. juni 2025, hvor udvalget godkendte administrationens indstilling forudsat positiv naboorientering. Naboorienteringen gav anledning til en del indsigelser jf. bilag 5, hvorfor sagen igen forlægges Teknik og Miljø Udvalget.
Ansøgning
Administrationen har modtaget en byggeansøgning vedrørende opførelse af en bygning til blandet erhvervs- og boligformål i Søndervig. I stueplan etableres 2 erhvervsenheder og på 1 sal opføres der 4 ferielejligheder.
Erhvervsenhederne indrettes som fiskebutik med let servering og den anden del bliver en tøjbutik med åbent værksted, som man også kender fra Hvide Sande jf. bilag 6.
Ejendommen er beliggende inden for delområde A i Lokalplan 370, som er udlagt til centerformål, herunder ferieboliger, butikker, restauranter og liberale erhverv. Lokalplanen stiller krav om, at der til det ansøgte projekt etableres 24 parkeringspladser inden for lokalplanområdet.
Bygherren søger om tilladelse til alene at etablere 8 p-pladser på egen grund, svarende til 1/3 af parkeringskravet, og foreslår, at de resterende 16 pladser dækkes via indbetaling til kommunens P-fond jf. bilag 1.
De 8 pladser på grunden forventes hovedsageligt at blive anvendt af beboere i ferieboligerne og ansatte i erhvervsdelen, mens gæster til erhvervsdelen anses som strøggæster, der benytter byens øvrige parkeringsmuligheder – herunder det kommende parkeringsareal ved Nyhavn.
Bygherres ansøgning tager udgangspunkt i en tidligere beslutning på Teknik- og Miljøudvalget mødet den 24. januar 2023, punkt 9 jf. bilag 2, hvor udvalget besluttede at mindst 30% af de krævede parkeringspladser skal etableres på egen grund i forbindelse med revisionen af parkeringsvedtægten og ændringen af områdeafgrænsningen ved Søndervigvej i Ringkøbing.
Administrationens vurdering
Søndervig er et område med stor besøgsaktivitet året rundt, især i sommerhalvåret, hvor presset på parkeringskapaciteten er særligt højt. Der er derfor et væsentligt behov for offentligt tilgængelige parkeringspladser i og omkring bymidten.
Administrationen vurderer, at en omfattende anvendelse af parkeringsarealet i Nyhavn til private projekter kan begrænse tilgængeligheden for midlertidige brugere og turister. Det kan medføre en forringelse af områdets funktion som turistmål og handelscentrum i højsæsonen. Samtidig kan en balanceret tilgang – hvor dele af parkeringsbehovet dækkes uden for bymidten – understøtte kommunens målsætning om at reducere biltrafik i centrum og skabe et mere attraktivt og sammenhængende handels- og strøgmiljø i Søndervig.
Tidligere projekter i området, herunder på Badevej 6-10, har fået tilsvarende dispensation til køb af parkeringspladser via P-fonden jf. bilag 3.
I det aktuelle projekt foreslår bygherre at etablere 8 ud af 24 parkeringspladser på egen grund, svarende til 1/3 af parkeringskravet. Administrationen vurderer, at dette ikke er tilstrækkeligt til at dække behovet for faste brugere – herunder beboere og ansatte i erhvervsenhederne.
Lokalplanen understøtter Søndervigs rolle som et vigtigt turistcenter, hvor detailhandel, ferieboliger og servicevirksomheder er omdrejningspunkter. Da området tiltrækker mange endagsbesøgende og turister – især i sommerhalvåret – er parkeringskapaciteten en forudsætning for områdets funktion og tilgængelighed.
Lokalplanen lægger vægt på, at parkering tænkes med som en integreret del af bebyggelsen. Der skal være tilstrækkeligt med p-pladser til butikker, ferieboliger og øvrige funktioner, og de skal indrettes, så de passer naturligt ind i bybilledet.
Administrationen anbefaler derfor, at der etableres mindst 12 parkeringspladser på egen grund, svarende til 50% af parkeringskravet. Dette vil sikre, at der som minimum er 1-2 pladser pr. feriebolig og tilstrækkelig kapacitet til personalet i erhvervsdelen, jf. bilag 7.
De resterende 12 pladser, svarende til det resterende parkeringskrav, kan herefter dækkes ved indbetaling til kommunens P-fond, med henvisning til den kommende parkeringskapacitet i Nyhavn.
For at kvalificere vurderingen er der udarbejdet en beregning baseret på parkeringskrav i en nærliggende lokalplan med tilsvarende anvendelse. Denne viser, at kravet i den aktuelle lokalplan er relativt højt, jf. bilag 4, hvilket understøtter behovet for en fleksibel løsning i denne sag.
Administrationen tilpasser dermed Teknik- og Miljøudvalgets beslutning af 23. januar 2024. Det vurderes dog at være nødvendigt for at sikre, at bygningsmassen ikke fremstår for dominerende i bybilledet.
Administrationens vurdering af naboindsigelser
Naboorienteringen gav anledning til en del indsigelser jf. bilag 5. Naboindsigelserne giver samlet set et udtryk for bekymring omkring presset på parkeringspladserne i Søndervig. Mange henviser til konkrete problemer som følge fra tidligere godkendte projekter. Der nævnes ulovlig parkering, brug af private parkeringspladser, og øget trafikale problemer på Lodbergsvej. Samtidig udtrykkes der kritik af kommunens praksis for dispensationer vedrørende parkering, og flere peger på, at byen allerede er tæt bebygget og har mistet noget af sit præg som en hyggelig ferieby.
Administrationen bemærker, at lokalplanens formål er, at sikre et harmonisk centerområdet med ferieboliger, butikker, restauranter og liberale erhverv, hvilket giver mulighed for et projekt som det ansøgte. Desuden vurderes det, at det ansøgt projekt vil kunne harmonere ind i området, med Strandbyen som direkte nabo.
De kommende erhvervsaktiviteter i stueetagen – en fiskebutik og en tøjbutik – forventes primært at tiltrække strøgkunder og forbipasserende fodgængere, som derfor forventes allerede at færdes i området. Det vurderes derfor at det er muligt at lempe på kravet til parkering på egen grund, da der forsat vil være plads til gæster i ferieboligerne og de ansatte.
De kommende parkeringspladser i Nyhavn, som er beliggende mindre end en kilometer fra projektet, vil desuden bidrage til at lette presset i området og sikre bedre adgangs - og parkeringsmuligheder i hele Søndervig for både besøgende og beboere i højsæsonen.
Lovgrundlag og juridisk vurdering
Planlovens § 19 stk. 1)
Kommunalbestyrelsen kan dispensere fra bestemmelser i en lokalplan eller en plan mv., der er opretholdt efter § 68, stk. 2, hvis dispensationen ikke er i strid med principperne i planen, eller tidsbegrænses til maksimalt 3 år
ØkonomiIngen bemærkninger.
EffektvurderingEn dispensation til køb af parkeringspladser via kommunens P-fond – svarende til de pladser, der skal dække erhvervsdelens gæster – vurderes at kunne bidrage positivt til bymiljøet i Søndervig. Ved at placere en større del af biltrafikken uden for bymidten, mindskes trykket i centrum, hvilket kan medvirke til at skabe et mere attraktivt og sammenhængende handels-, strøg- og centerområde.
Tiltaget vurderes at understøtte kommunens målsætning om at begrænse biltrafikken i de mest tætbebyggede og besøgsintensive dele af Søndervig, og samtidig fastholde god tilgængelighed for midlertidige brugere og turister.
IndstillingAdministrationen indstiller til Teknik- og Miljøudvalget:
- at der meddeles dispensation til, at mindst 12 parkeringspladser, svarende til 50%, etableres på egen grund, og at de resterende pladser til projektet kan opfyldes ved indbetaling til kommunens P-fond,
- at administrationen fremover får kompetencen til – i sager i Søndervig – forudsat en positiv naboorientering at meddele dispensation, hvor 50 % af parkeringskravet opfyldes på egen grund, og de resterende pladser købes i kommunens P-fond.
Teknik- og Miljøudvalget 29-04-2025
Teknik- og Miljøudvalget udsatte sagen med henblik på yderligere udredning.
Teknik- og Miljøudvalget 10-06-2025
Teknik- og Miljøudvalget godkendte administrationens indstilling med den tilføjelse, at indstillingens pkt. 2 også forudsætter positiv naboorientering.
Fraværende: Hans Pedersen. BilagBeslutning
Teknik- og Miljøudvalget godkendte administrationens indstilling.
Kopier link til punktet - Print
11 : Badevej 17, 6950 - Dispensation til køb af P-pladser via P-Fonden
Sagsnr: 25-007221
SagsfremstillingTeknik- og Miljøudvalget skal tage stilling til, om der kan meddeles dispensation fra kravet i Lokalplan 370, §8.4, om etablering af samtlige parkeringspladser på egen grund.
Der søges samtidig om godkendelse af, at det resterende parkeringsbehov kan opfyldes ved betaling til kommunens P-fond. De manglende pladser tænkes dækket af fremtidige offentlige parkeringsarealer ved Nyhavn.
Ansøgning
Administrationen har modtaget en byggeansøgning vedrørende opførelse af en bygning til blandet erhvervs- og boligformål i Søndervig. Bygningen skal rumme:
- I stueetage etableres én erhvervsenhed til feriehusudlejning samt 5 offentlig toiletter.
- På 1. sal etableres tre ferielejligheder.
Tegninger af byggeriet er vist på Bilag 1.
Projektet er beliggende i delområde A i lokalplan 370, der er udlagt til centerformål som ferieboliger, butikker og restauranter. Ifølge lokalplanen skal der etableres 9 parkeringspladser til det ansøgte byggeri.
Ansøger søger om følgende løsning:
5 parkeringspladser etableres på egen grund (svarende til 55 % af kravet).
3 pladser dækkes via indbetaling til kommunens parkeringsfond.
1 ekstra plads etableres og tinglyses på en anden grund i Søndervig centrum.
Dispensationsansøgning er vedlagt på bilag 2.
Ansøger oplyser, at der ikke vil være nøgleudlevering til sommerhusgæster fra kontoret på Badevej 17 i Søndervig. Ansøger oplyser, at nøgleudlevering sker via nøglebokse med kode ved sommerhusene.
Tidligere afgørelser og baggrund
Administrationen henviser til Teknik- og Miljøudvalgets møde den 10. juni 2025 (Bilag 3), hvor udvalget besluttede at dispensere til, at 50 % af parkeringskravet opfyldes på egen grund, og de resterende pladser købes i kommunens P-fond.
Grunden ejes af kommunen, mens bygningen på grunden ejes af et privat firma. Der er indgået aftale med bygningsejer, som forpligter bygningsejer til at stille offentlige toiletter til rådighed i bygningen.
Teknik- og miljøudvalget har den 23. januar 2024 behandlet en sag på samme ejendom vedrørende udvidelse af bebyggelsen. Teknik- og Miljøudvalget meddelte i den forbindelse dispensation fra parkeringskravet den 23. januar 2024. (Bilag 4)
Administrationens vurdering
Søndervig er en populær turistdestination med stor tilstrømning af besøgende – særligt i sommermånederne. Det medfører pres på byens parkeringskapacitet, især i bymidten.
Administrationen vurderer, at en omfattende anvendelse af parkeringsarealet i Nyhavn til private projekter kan begrænse tilgængeligheden for midlertidige brugere og turister. Det kan medføre en forringelse af områdets funktion som turistmål og handelscentrum i højsæsonen.
Samtidig kan en balanceret tilgang – hvor dele af parkeringsbehovet dækkes uden for bymidten – understøtte kommunens målsætning om at reducere biltrafik i centrum og skabe et mere attraktivt og sammenhængende handels- og strøgmiljø i Søndervig.
Tidligere projekter i Søndervig, har fået tilsvarende dispensation til at dække dele af parkeringskravet via kommunens parkeringsfond.
Lokalplan 370 understreger vigtigheden af tilstrækkelig parkering som en integreret del af byens struktur – til gavn for detailhandel, ferieboliger og servicevirksomheder. Parkering skal tænkes ind som en naturlig del af bebyggelsen og være placeret, så det understøtter Søndervigs rolle som turistdestination.
Administrationen vurderer, at den foreslåede parkeringsløsning er i tråd med lokalplanens hensigt og ikke vil medføre væsentlige forringelser af forholdene i området.
Samlet vurderer administrationen, at løsningen er tilstrækkelig til at dække behovet for beboere og ansatte uden at forringe den samlede parkeringskapacitet i Søndervig væsentligt.
Der vil samlet set ikke ske et fald i antallet af offentligt tilgængelige parkeringspladser, da nedlæggelsen af én plads på grunden opvejes af etableringen af en ny plads andetsteds i Søndervig som angivet på bilag 5.
Kommunen optræder i denne sag både som grundejer og myndighed, og dermed er der tale om myndighedsinhabilitet. Administrationen gør opmærksom på, at bygningsmyndigheden og den kommunale forvaltning af ejendomme og lejekontrakter er organisatorisk adskilt og opererer med selvstændige budgetter. Administrationen vurderer, at der med denne sagsbehandling ikke er lagt vægt på usaglige hensyn, da dispensationen følger kommunens praksis for parkering i Søndervig.
Høring af naboer
Det ansøgte har været i høring ved naboer og nærliggende ejendomme inden for lokalplanområdet. Der er her kommet indsigelser fra naboerne til det ansøgte som er vedlagt i bilag 6. Ansøgers svar til indsigelserne er vedlagt i bilag 7.
Planlovens § 19 stk. 1)
Kommunalbestyrelsen kan dispensere fra bestemmelser i en lokalplan eller en plan mv., der er opretholdt efter § 68, stk. 2, hvis dispensationen ikke er i strid med principperne i planen, eller tidsbegrænses til maksimalt 3 år
ØkonomiIngen bemærkninger.
EffektvurderingEn dispensation til køb af parkeringspladser via kommunens P-fond vurderes at kunne bidrage positivt til bymiljøet i Søndervig. Ved at placere en større del af biltrafikken uden for bymidten, mindskes trykket i centrum, hvilket kan medvirke til at skabe et mere attraktivt og sammenhængende handels-, strøg- og centerområde.
Tiltaget vurderes at understøtte kommunens målsætning om at begrænse biltrafikken i de mest tætbebyggede og besøgsintensive dele af Søndervig, og samtidig fastholde god tilgængelighed for midlertidige brugere og turister.
IndstillingAdministrationen indstiller til Teknik- og Miljøudvalget:
At der meddeles dispensation til, at der etableres 1 parkeringsplads på anden grund i Søndervig, og at der kan indbetales til kommunens P-fond til køb af 3 parkeringspladser.
Bilag- Bilag 1 - Tegninger
- Bilag 2 - Ansøgning om dispensation
- Bilag 3 - TMU-sag Lodbergsvej 26
- Bilag 4 - TMU-sag Badevej 17
- Bilag 5 - Placering af parkeringsplads
- Bilag 6 - Indsigelser ifm. høring
- Bilag 7 - Høringssvar til indsigelser ifm. høring
Teknik- og Miljøudvalget godkendte administrationens indstilling.
Kopier link til punktet - Print
12 : Åvænget 5, 6980 - Landzonetilladelse til ombygning og udvidelse af Tim Mølle Dambrug
Sagsnr: 23-022233
SagsfremstillingTeknik- og Miljøudvalget skal tage stilling til, om der skal meddeles landzonetilladelse til ombygning og udvidelse af Tim Mølle Dambrug samt opførelse af en ny tjenestebolig på ejendommen Åvænget 5, 6980 Tim.
Sagen forelægges udvalget, idet projektet indebærer en væsentlig forøgelse af dambrugets areal, en udvidelse af aktiviteterne samt flytning af den eksisterende tjenestebolig 88,4 meter mod syd i forhold til nuværende placering.
Ansøgning
Der er ansøgt om landzonetilladelse til en gennemgribende ombygning og udvidelse af Tim Mølle Dambrug, som omfatter både nye tekniske anlæg og opførelse af en ny tjenestebolig.
Der ansøges om opførelse af syv nye produktionsanlæg i beton, et nedgravet biofilter samt et indpumpningsanlæg med tilhørende sandfilter, som skal sikre vandforsyning til dambruget via indtag fra Tim Å. Hertil kommer opførelse af en teknikbygning på 434 m², to nye fodersiloer og flytning af en eksisterende kalksilo fra det nuværende anlæg. Der etableres endvidere en ny ilttank, en slamtank og installationer i form af mågenet.
Som led i forbedringen af dambrugets rensekapacitet etableres en ny plantelagune på 17.000 m² som supplement til den eksisterende lagune. Den samlede kapacitet til rensning af afløbsvandet øges hermed, hvilket sikrer at miljøforholdene omkring anlægget ikke forringes.
Der ansøges desuden om opførelse af en ny tjenestebolig i ét plan som erstatning for den eksisterende tjenestebolig. Den nye bolig får et boligareal på 132 m² og en integreret carport på 40 m². Bygningen opføres med en maksimal højde på 4,6 meter og placeres 88,4 meter mod syd i forhold til den eksisterende bolig, som nedrives. Flytningen sker, da jorden ved den eksisterende bolig er registreret som forurenet.
Alle øvrige bygninger og tekniske anlæg på ejendommen nedrives som led i projektet, dog undtaget kalksiloen, der flyttes og fortsat indgår i driften.
Tegninger, snit og beliggenhedsplaner fremgår af bilag 1.
Arealstørrelse
Det eksisterende dambrugsareal vest for Åvænget udgør 55.341 m², og med den planlagte udvidelse mod øst tilføjes yderligere 25.905 m². Det samlede areal for dambruget bliver dermed 81.245 m². Af dette udgør 19.000 m² produktionsanlæg, herunder tekniske faciliteter, bygninger og parkeringsarealer, mens omkring 36.000 m² anvendes til plantelagune. Det resterende areal består af omgivelser med krat, skov og natur.
Baggrund
Projektet er en direkte følge af et større vandløbsrestaureringsprojekt ved Tim Å, hvor stemmeværkerne ved både Nr. Esp og Tim Mølle Dambrug nedlægges for at sikre fri passage for fisk og smådyr. I den forbindelse omlægges vandforsyningen til Tim Mølle Dambrug, som fremover skal ske via indpumpning fra Tim Å. Dette nødvendiggør en gennemgribende ombygning og udvidelse af dambruget med henblik på at sikre stabil drift, overholdelse af miljøkrav og forbedrede produktionsvilkår.
Samtidig ønsker ansøger at samle produktionen fra det nærliggende Nr. Esp Dambrug på Tim Mølle Dambrug. Nr. Esp Dambrug vil derfor blive nedlagt og området omdannet til et naturområde. Et skitseprojekt af naturområdet beskriver etableringen af en varieret ådal med høj biodiversitet og rekreativ værdi.
Miljø- og nabohensyn
Der foreligger en miljøgodkendelse og dispensationer fra naturbeskyttelseslovens § 3 og § 16, til det ansøgte projekt.
Der er foretaget naboorientering efter planlovens § 35, stk. 4-5. Der indkom ingen bemærkninger i høringsperioden.
Landskabsmæssige forhold
Projektområdet ligger uden for udpegede bevaringsværdige landskaber, men inden for områder med geologiske bevaringsværdier, større sammenhængende landskaber samt å- og skovbyggelinjer. Ejendommen strækker sig over to forskellige landskabstyper. Den største del af ejendommen ligger i Stadil Landbrugslandskab, som er karakteriseret ved åbne marker, svagt bølgende terræn og spredt hegnsstruktur. Den nordøstlige del af arealet ligger i Skovbjerg Bakkeø Plantagelandskab, hvor terrænet er lukket og præget af bevoksning.
De nye anlæg er udformet og placeret med henblik på at reducere den visuelle påvirkning af det omkringliggende landskab. Tjenesteboligen placeres i nærheden af eksisterende beplantning og bygningsmasse, mens produktionsanlæg og tekniske installationer tilpasses terrænet og opføres i neutrale materialer og farver for at sikre en god landskabelig indpasning. Det vurderes, at området generelt ikke er sårbart over for mindre udviklingstiltag, når disse gennemføres med respekt for landskabets karaktertræk – hvilket vurderes at være tilfældet i det konkrete projekt.
Plan- og lovgivningsmæssige forhold
Dambrug betragtes ikke som landbrug i planlovens forstand og er dermed ikke omfattet af undtagelsesbestemmelsen i planlovens § 35, stk. 1, 2. pkt. Etablering og udvidelse af dambrug kræver derfor landzonetilladelse, uanset om ejendommen er noteret som landbrugsejendom. Projektet ved Tim Mølles Dambrug forudsætter således landzonetilladelse efter planlovens § 35, stk. 1.
Ringkøbing-Skjern Kommune har en lang tradition for akvakultur, og i Kommuneplan 2025-2027 fremgår det, at kommunen ønsker at understøtte en bæredygtig udvikling af erhvervet med hensyn til natur, landskab og vandmiljø.
Kommunen lægger vægt på etablering af recirkulerede anlæg, reduceret udledning af næringsstoffer samt anvendelse af ny miljøteknologi. Etablering og udvidelse af dambrug skal ske på egnede lokaliteter og i overensstemmelse med målene om god økologisk tilstand i vandområdeplanerne. Udvidelser skal ske med respekt for det omgivende landskab og hensyn til naboer. Eventuelle nye udledninger af kvælstof og fosfor forudsættes kompenseret, fx gennem nedlæggelse af dambrug i samme vandsystem eller ved udtagning af landbrugsjord.
Administrationens bemærkninger
Administrationen vurderer, at det ansøgte projekt ved Tim Mølle Dambrug er velbegrundet i forhold til både de driftsmæssige, miljømæssige og planfaglige hensyn. Projektet er desuden i overensstemmelse med planlovens bestemmelser og kommuneplanens målsætninger om en bæredygtig udvikling af akvakultur. Projektet indebærer en teknisk og miljømæssig opgradering af dambruget, herunder etablering af biofilter, plantelagune og moderne produktionsanlæg, som samlet set bidrager til en mere effektiv og miljøansvarlig drift.
Ændringen af vandforsyningen fra opstemmet vand til indpumpning fra Tim Å vil forbedre de økologiske forhold i vandløbet markant. Samtidig nedlægges det nærliggende Nr. Esp Dambrug, og området omdannes til natur, hvilket styrker biodiversiteten og landskabsværdien. Tiltagene understøtter kommunens mål om naturgenopretning og klimatilpasning, og giver væsentligt bedre livsvilkår for fisk, smådyr og vandplanter – ikke kun omkring Tim Mølle Dambrug, men i hele Tim Å, hvor der gennem 30 år er gennemført omfattende restaureringsindsatser.
Bygningsmassen er placeret så samlet som muligt og hensigtsmæssigt i forhold til terræn og eksisterende beplantning, hvilket reducerer den visuelle påvirkning af landskabet. Genslyngningen af Tim Å og fjernelsen af anlæg ved Nr. Esp Dambrug vurderes desuden at have en positiv landskabelig og rekreativ effekt.
Administrationen vurderer, at den ny tjenestebolig opføres som erstatning for det nuværende, der fjernes ved ombygningen, og flyttes fra et areal med jordforurening af hensyn til sundheden. Den nye bygning placeres i tilknytning til eksisterende driftsbygning ved dambruget og vurderes at havde en hensigtsmæssig placering, idet beplantning og udformning mindsker den visuelle påvirkning af det omkringliggende landskab.
Placeringen tæt på dambruget er desuden afgørende for den kontinuerlige driftsovervågning, hvilket den nye placering understøtter.
Samlet set vurderer administrationen, at projektet ved Tim Mølle Dambrug, herunder opførelsen af den nye tjenestebolig, er teknisk gennemarbejdet, miljømæssigt balanceret og planmæssigt i overensstemmelse med gældende retningslinjer. Projektet forventes at give positive driftsmæssige, miljømæssige og landskabelige effekter uden væsentlige negative konsekvenser. Det anbefales derfor, at der meddeles landzonetilladelse til projektet med anførte vilkår.
Lovgrundlag og juridisk vurderingPlanlovens §35, stk. 1.
ØkonomiIngen bemærkninger.
EffektvurderingIngen bemærkninger.
IndstillingAdministrationen indstiller, at Teknik- og Miljøudvalget meddeler landzonetilladelse til det ansøgte projekt på følgende vilkår:
- At de godkendte bygninger og anlæg skal opføres i overensstemmelse med det fremlagte projektmateriale
- At de miljøkrav og betingelser, der fremgår af den gældende miljøgodkendelse, skal overholdes
- At såfremt dambrugsdriften ophører, skal alle bygninger og anlæg fjernes for ejerens regning. Arealet skal reetableres og tilbageføres til natur inden for 1 år efter ophør
- At det ansøgte enfamiliehus må ikke udstykkes til en selvstændig ejendom/matrikel.
- At der skal opnås overkørselstilladelse til adgangsvej ved det nye enfamiliehus, inden ibrugtagning.
Teknik- og Miljøudvalget godkendte administrationens indstilling.
Kopier link til punktet - Print
13 : Godkendelse af Ringkøbing-Skjern Kommunes deltagelse i et EU-Life projekt - LIFE4Rivers
Sagsnr: 22-013752
SagsfremstillingI denne sag lægges der op til beslutning, om Ringkøbing-Skjern Kommune vil indgå i finansieringen af et EU-LIFE projekt – LIFE4Rivers i et samarbejde med Tønder Kommune (projektejer og Lead-partner), Aabenraa Kommune, Varde Kommune, Esbjerg Kommune og Haderslev Kommune, samt Danmarks Sportsfiskerforbund (DSF), Danmarks Center for Vildlaks (DCV), DTU Aqua, Nationalpark Vadehavet, Aarhus University NBS og Det Syddanske EU-kontor.
Projektets formål er at genskabe naturlige gyde- og opvækstområder for laks, ørreder, helt, stalling og lampretter m.fl. tilknyttet de store vestvendte vandløb, der er udpeget som Natura 2000 habitatområder i Midtjylland og Sønderjylland. Dertil kommer forbedring af levesteder for andre truede og beskyttede arter som flodperlemusling, vandranke og grøn kølleguldsmed.
Udvalget har i mødet den 19. december 2023 besluttet, at Ringkøbing-Skjern Kommune indgår i et samarbejde om at skrive en projektansøgning til LIFE4Rivers.
I dette arbejde med at skrive ansøgningen indgår, at der gives forhåndstilsagn om, at de involverede parter vil indgå i finansieringen
Med baggrund i erfaringer med etableringen af brede lavvandede stryg til især vandrefiskene i blandt andet Vorgod å, Omme å og Skjern å vurderes det, at der vil være gode muligheder for at få tilsagn til et EU-LIFE projekt til også at inddrage forbedring af biodiversiteten i forbindelse med etablering af gydebanker i større vandløb. Der er i projektet peget på 15 lokaliteter i Omme å-systemet, hvor der foreslås etableret nye og brede grus-stryg.
Ved at deltage i ansøgning og realisering af et nyt LIFE-projekt kan der skaffes medfinansiering til dette vandløbsprojekt, et restaureringsprojekt som ikke indgår som indsatser i statens vandområdeplaner, og der kan opbygges erfaring i kommunen med gennemførelse af LIFE-projekter.
Lovgrundlag og juridisk vurderingProjektet vil kræve godkendelser fra Vandløbsloven, Naturbeskyttelsesloven og Planloven
ØkonomiProjektet forventes at have et samlet budget på ca. 86 mio. kr. og det forventes at projektet vil starte i 2. kvartal 2026 og vare i 6-7 år.
Hver projektpartner vil have en udgift til konsulenthjælp til at udvikle og skrive selve ansøgningen. Ansøgningen skrives af Envidan for omkring 0,07 mio. kr. pr. kommune. Denne udgift er i foråret 2025 afholdt og dækket af driftsbudgettet til vandløbsrestaurering.
Det samlede budget for projekterne med de 15 gydebanker i Omme Å i Ringkøbing-Skjern Kommune er ca. 2.461.000 kr. Heraf dækker LIFE-programmet 60% og der forventes at kunne findes yderligere 20% i fondsfinansiering.
Kommunens egenfinansiering forventes således at blive ca. 492.000 kr. i perioden fra 2026 til 2032. Hertil kommer udgifter til kommunens arbejdsløn, alternativt konsulentbistand, i forbindelse med projektering og tilsyn mv., som også vil blive dækket med op til 80 % af de brugte arbejdstimer.
Der arbejdes netop nu på at sikre medfinansiering fra danske naturfonde, såsom Aage V. Jensens Fond, 15. juni Fonden og Den Danske Naturfond, for at reducere kommunernes egenfinansiering.
Hvis projektet godkendes af EU-LIFE og mod forventning ikke opnår medfinansiering fra fonde, vil deltagelse i LIFE4Rivers projektet blive taget op til politisk beslutning igen, inden kommunen giver endeligt tilsagn om deltagelse i projektet.
Kommunens egenfinansiering forventes at kunne afholdes indenfor udvalgets budget til vandløbsrestaurering. EffektvurderingSe sagsfremstilling.
IndstillingAdministrationen indstiller, at Teknik og Miljøudvalget beslutter, at
- Ringkøbing-Skjern Kommune indgår i samarbejdet EU LIFE-projektet LIFE4Rivers som beskrevet i sagsfremstillingen, og
- der gives forhåndsgodkendelse til kommunens medfinansiering på 492.000 kr. plus arbejdstimer i perioden 2026-2032
Teknik- og Miljøudvalget godkendte administrationens indstilling.
Kopier link til punktet - Print
14 : Ansøgning om miljøgodkendelse inkl. dispensation for lugt til husdyrbruget på adressen Attenagrevej 9, 6950 Ringkøbing.
Sagsnr: 24-027325
SagsfremstillingUdvalget bedes tage stilling til, om der kan meddeles dispensation fra lugtkriteriet efter den såkaldte 50% regel og om der kan meddeles miljøgodkendelse til det ansøgte.
Husdyrbruget beliggende på adressen Attenagrevej 9, 6950 Ringkøbing har søgt om miljøgodkendelse efter stipladsmodellen for at opnå større fleksibilitet. Dette betyder, at der fastsættes vilkår for produktionsarealerne, som afløser den eksisterende tilladelse til antal dyr og krav om ind- og afgangsvægt.
Der sker ingen produktionsmæssige eller anlægsmæssige udvidelser på husdyrbruget i forbindelse med den ansøgte godkendelse. Den i miljøgodkendelsen fra 2018 planlagte gyllebeholder på 4.500 m³ vil desuden ikke blive etableret.
I forbindelse med nabohøringen, er der modtaget et høringssvar fra en nabo på adressen Kirkemarken 2, 6950 Ringkøbing.
I høringssvaret fremgår b.la. følgende:
Vi er bekymrede for de sundhedsmæssige og livskvalitetsmæssige konsekvenser ved en eventuel øget belastning af lugt, ammoniak, bioaerosoler og partikler – især for vores små børn. Høringssvaret fremgår i bilag 2.
Ejers konsulent har kommenteret høringssvaret. Her fremgår b.la., at der er installeret 2 luftrenser på ejendommen, som har det formål, at rense en del af ammoniakken ud af ventilationsluften i drægtighedsstalden. Luftrenserene fjerner også støvpartikler og bioaerosoler i et vist omfang. Det kommenterede høringssvar fremgår af bilag 3.
Administrationens bemærkninger
Lugt
Ved overgangen til godkendelse efter stipladsmodellen overholdes lugtkriteriet til naboejendommen på Attenagrevej 14 og til samlet bebyggelse (Kirkemarken 3 er den nærmeste ejendom) ikke.
Kommunen kan give dispensation til lugtkriteriet, hvis følgende lovkrav er overholdt:
1. Husdyrbrugets samlede lugtemission ikke stiger.
- Det ansøgte medfører, at lugtemission fra enkelte staldafsnit ikke øges nærmere byzone, samlet bebyggelse, enkelt bolig m.v..
- Den vægtede gennemsnitsafstand til byzone, samlet bebyggelse, enkelt boliger m.v. er mere end 50% af den beregnede geneafstand for alle kombinationer af staldafsnit på husdyrbruget.
Det ansøgte projekt overholder ovenstående. Desuden er følgende gældende:
- Kommunen har ikke modtaget berettigede klager over lugt fra husdyrbruget.
- Ansøger har dokumenteret, at mulige tiltag for at reducere lugtbidraget er undersøgt.
- Ansøger bygger ikke nye stalde- eller gødningsopbevaringsanlæg eller andre væsentlige
investeringer, fx gennemgribende renoveringer eller ny teknologi.
Ammoniak
Ansøgningen overholder BAT-kravet samt gældende lovkrav for kategori 1-, 2- og 3-natur og bilag IV-arter.
Bioaerosoler og partikler
Bioaerosoler er mikroskopiske luftbårne partikler af biologisk oprindelse, f.eks. bakterier, svampe-, alge- og pollenpartikler. I forbindelse med ændringer eller udvidelser af husdyrproduktion findes der p.t. ikke specifikke grænseværdier eller lovkrav vedrørende emission af bioaerosoler og partikler. Derfor indgår disse ikke i den lovpligtige miljøvurdering efter husdyrbrugsloven.
Generelt
Høringssvaret er indsendt fra Kirkemarken 2, 6950 Ringkøbing, som ligger ca. 930 meter nordvest for husdyrbruget på Attenagrevej 9, Ringkøbing, se bilag 1.
Lovgrundlag og juridisk vurderingHusdyrbrugsloven, Lov om miljøgodkendelse m.v. af husdyrbrug nr. 1572 af 20. december 2006 senest ændret i bekendtgørelse af lov om husdyrbrug og anvendelse af gødning m.v. nr. 520 af 1. maj 2019
Husdyrgodkendelsesbekendtgørelsen, bekendtgørelse om godkendelse og tilladelse m.v. af husdyrbrug nr. 300 af 20. marts 2024
Bekendtgørelse om miljøregulering af dyrehold og om opbevaring af gødning nr. 2243 af 29. november 2021 (Husdyrgødningsbekendtgørelsen)
ØkonomiIngen bemærkninger.
EffektvurderingIngen bemærkninger.
IndstillingAdministrationen indstiller, at der meddeles dispensation for lugt efter 50% reglen, og at der meddeles miljøgodkendelse til den ansøgte overgang til stipladsmodellen.
Bilag- Bilag 1. Placering
- Bilag 2. Høringssvar fra nabo på adressen Kirkemarken 2, 6950 Ringkøbing
- Bilag 3. Ansøgers kommentarer til høringssvaret
Teknik- og Miljøudvalget godkendte administrationens indstilling.
Kopier link til punktet - Print
15 : Tilkendegivelse af ekspropriationsvilje til etablering af cykelsti mellem Hostedhøj og Sønderupvej
Sagsnr: 24-027057
SagsfremstillingFormålet med denne dagsorden er at få en politisk godkendelse af skitseprojektet for cykelstien mellem Hostedhøj og Sønderupvej, beslutte hvilket scenarie der skal gennemføres i Fiskbæk samt en tilkendegivelse af, at de nødvendige arealer til anlæg af cykelstien kan erhverves ved ekspropriation.
Skitseprojekt
Teknik- og Miljøudvalget besluttede den 22. oktober 2024, at cykelstiprojektet langs Skjernvej, fra Hostedhøj til Sønderupvej skal igangsættes.
Administration har i løbet af foråret 2025 fået udarbejdet et skitseprojekt for strækningen, som samlet er ca. 4,0 km lang.
Stien vil primært blive anlagt som en 2,5 m bred dobbeltrettet asfalteret cykelsti.
Mellem Hostedhøj og Fiskbæk vil stien blive anlagt i vejens østlige side, for at sikre sammenhængen med den eksisterende dobbeltrettede sti mellem Astrup og Hostedhøj, som også er placeret i vejens østlige side. Mellem Hostedhøj og Lundgårdvej (ca. 1 km) er der en eksisterende privatanlagt sti, belagt med knust asfalt i en bredde på ca. 1,8 m. Denne sti nedlægges og den nye sti etableres delvist i samme tracé.
Mellem Fiskbæk og Sønderupvej anlægges stien også i vejens østlige side. Denne placering skyldes, at der i vejens vestlige side er to ejendomme, der ligger meget tæt på vejen og en evt. cykelsti vil derfor skulle anlægges meget tæt på eksisterende beboelsesbygninger. Det vil både give indbliksgener samt dårligt oversigt ved udkørsel fra ejendommene. Ved Sønderupvej kobles stien på eksisterende dobbeltrettet cykelsti mellem Videbæk og Nr. Vium, hvor der også findes en eksisterende krydsningshelle til krydsning af Skjernvej.
Gennem Fiskbæk er der tre forskellige scenarier for hvordan stiprojektet kan gennemføres:
| Scenarie | Beskrivelse | Fordele | Ulemper |
| 0 | De eksisterende midterheller i begge ender af byen, ombygges så de fungerer som krydsningsheller. Det er den sædvanlige løsning der anvendes, når en landsby tilkobles en dobbeltrettet cykelsti.
Fremkommelighed:*** Trafiksikkerhed:* | Den hurtigste og mest intuitive vej.
Den absolut billigste løsning.
| Gennem byen skal cyklister cykle på vejen, hvilket ikke er anbefalelsesværdigt på grund af vejbredden på ca. 7 m (denne bør være 8,5 m ved cykeltrafik på kørebanen) samt en forholdsvis stor mængde tung trafik gennem byen.
Risiko for at cyklister vælger at cykle på fortovet (evt. i den forkerte side for at undgå krydsning af Skjernvej). |
| -------- | -------------------------------------- | ------------------ | ---------------------------------- |
| 1 (rød) | De eksisterende midterheller i begge ender af byen, ombygges så de fungerer som krydsningsheller.
Derudover etableres enkeltrettede delte stier ved at inddrage 1,0 m af det ca. 1,8 m brede fortov til cykelsti.
Fremkommelighed:**** Trafiksikkerhed:** | Den hurtigste og mest intuitive vej.
Cyklister er adskilt fra biltrafikken.
| Cyklister skal krydse Skjernvej to gange hvis der cykles fra nord mod syd. For at undgå krydsningerne, er der risiko for at cyklister vælger at cykle i den forkerte side.
De delte stier er for smalle ift. anbefalingerne i vejreglerne (min. 1,5 m cykelsti og 1 m fortov).
Cyklister kommer tættere på bygningerne, hvilket kan give problemer med oversigten hen af cykelstien ved udkørslerne. |
| -------- | -------------------------------------- | ------------------ | ---------------------------------- |
| 2 (blå) | De dobbeltrettede stier forlænges henholdsvis nordøst om Fiskbæk hen til Skråvejen og langs Skjernvej fra Skråvejen mod syd til byskiltet. Derudover kan der laves 2 minus 1 vej på Skråvejen mellem de to stier.
Den samlede strækning er 500m, dette er 200 m længere end scenarie 1.
Fremkommelighed:** Trafiksikkerhed:**** | Cyklister på strækningen har ingen krydsninger af Skjernvej i Fiskbæk, og kan helt undgå at færdes på Skjernvej. | Det kan føles som en lang og meget snørklet omvej, hvilket kan få nogle cyklister til at fravælge stien og cykle på Skjernvej i stedet for.
Det vil være nødvendigt at skulle erhverve flere arealer. |
| -------- | -------------------------------------- | ------------------ | ---------------------------------- |
Anlægsøkonomien for scenarie 1 og 2 er stort set identiske.
Administrationen anbefaler, at der anvendes scenarie 2. Dette scenarie vurderes at give den bedste trafiksikkerhed, da det reducerer antallet af potentielle konfliktpunkter mellem lette trafikanter og biltrafikken, og da trafiksikkerhed for lette trafikanter bør vægtes højere end deres fremkommelighed.
Skitseprojektet er vedlagt som bilag. I skitseprojektet er der anvendt scenarie 1. Der kan blive foretaget mindre ændringer i projektet inden ekspropriation.
Arealerhvervelse
Administrationen anbefaler at erhverve arealerne til stien ved ekspropriation efter reglerne i lov om offentlige veje, kapitel 10. På denne måde sikres det, at anlægsarbejdet kan opstartes til foråret 2026, og samtidig sikres lodsejernes retsstilling og mulighed for prøvelse af erstatninger ved taksationssystemet. Det forventes, at åstedsforretningen kan finde sted i november 2025.
Der skal erhverves jord og/eller pålægges rådighedsindskrænkninger fra i alt 20 lodsejere (22 lodsejere ved scenarie 2).
De nødvendige arealer kan eksproprieres i henhold til Lov om offentlige veje kapitel 10.
ØkonomiOverslagspris for stiprojektet:
| Forundersøgelser (geoteknik og opmåling) | 130.000 kr. |
| Rådgivningsydelse (skitse- og detailprojekt) | 450.000 kr. |
| Arealerhvervelse inkl. landinspektørudgifter | 800.000 kr. |
| Anlægsudgifter ekskl. Fiskbæk by | 7.400.000 kr. |
| Anlægsudgifter Fiskbæk by (scenarie 1/2) | 600.000 kr. |
| I alt | 9.380.000 kr. |
Ved anvendelse af scenarie 0, kan der spares 450.00 kr.
Projektet finansieres af Pulje til stianlæg 2025 og 2026.
EffektvurderingEtablering af en cykelsti langs Skjernvej, fra Hostedhøj til Sønderupvej, vil være med til at understøtte mobilitetspolitikkens målsætning om at investere i udviklingen af trafikale tilbud til cyklister, gående og personer med handicap.
En cykelsti vil desuden forbedre trafiksikkerheden for lette trafikanter på strækningen.
IndstillingAdministrationen indstiller, at Teknik- og Miljøudvalget
- beslutter at der anvendes scenarie 2 i Fiskbæk,
- beslutter at gennemføre de nødvendige arealerhvervelser ved ekspropriation efter lov om offentlige veje, kapitel 10,
- udpeger et medlem til at deltage i åstedsforretningen
- sagen videresendes til Økonomiudvalget og Byrådet med anfaling om, at Teknik- og Miljøudvalget bemyndiges til at træffe den endelige ekspropriationsbeslutning.
- FISK_K20_A5_N4400 (Belægnings-, skilte- og afmrkningsplan)
- FISK_K20_A5_N4401 (Belægnings-, skilte- og afmrkningsplan)
- FISK_K20_A5_N4402 (Belægnings-, skilte- og afmrkningsplan)
- FISK_K20_A5_N4403 (Belægnings-, skilte- og afmrkningsplan)
- FISK_K20_A5_N4404 (Belægnings-, skilte- og afmrkningsplan)
- FISK_K20_A5_N4405 (Belægnings-, skilte- og afmrkningsplan)
- FISK_K20_A5_N4406 (Belægnings-, skilte- og afmrkningsplan)
Teknik- og Miljøudvalget anbefaler administrationens indstilling godkendt og udpegede Ole Nyholm Knudsen til at deltage i åstedsforretningen.
Kopier link til punktet - Print
16 : Tilkendegivelse af ekspropriationsvilje til etablering af sideudvidelse mellem Sdr. Vium og Lyne
Sagsnr: 25-014385
SagsfremstillingBaggrund og politisk beslutning
Teknik- og Miljøudvalget besluttede den 26. marts 2025, at administrationen skulle igangsætte arbejdet med en sideudvidelse af den kommunale vej mellem Sdr. Vium og Lyne. Beslutningen er truffet med henblik på at forbedre trafiksikkerheden og fremkommeligheden på en vejstrækning, der i dag har en meget varierende og generelt smalt breddeprofil.
Strækningens karakter og planlagt udvidelse
Den samlede strækning, der skal udvides, er cirka 5,5 km lang. Den eksisterende vejbredde varierer mellem 3,6 og 5,2 meter, hvilket giver udfordringer – særligt for tung trafik, landbrugskøretøjer og ved møde mellem køretøjer. Med udvidelsen planlægges en ensartet vejbredde på 6 meter, hvilket er i tråd med Ringkøbing-Skjern Kommunes standard for sekundære kommuneveje i det åbne land.
Udvidelsen omfatter udlægning af nye rabatter, opbygning af vejkasse samt mindre tilpasninger af dræn og grøfter. Desuden kan flytning af enkelte vejudstyrselementer blive nødvendig. Planlægningen fremgår af Ekspropriationsplan 1-5.
Jordkøb og ekspropriation
Projektet forudsætter, at der erhverves de nødvendige arealer fra omkringliggende lodsejere. I alt er der behov for arealer fra 20 lodsejere. For at sikre en rettidig igangsættelse af anlægsarbejdet anbefales det, at erhvervelsen sker ved ekspropriation i henhold til kapitel 10 i lov om offentlige veje.
Ekspropriation sikrer en klar og gennemsigtig proces, hvor lodsejerne har mulighed for at få prøvet erstatningsspørgsmål ved taksationsmyndighederne, samtidig med at projektets tidsplan kan fastholdes.
Forventet tidsplan
Det forventes, at åstedsforretningen kan gennemføres i september eller oktober 2025. Herefter følger en høringsfase og afgørelse, således at anlægsarbejdet kan igangsættes i efteråret 2025 og afsluttes i løbet af 2026.
Arealerne kan eksproprieres i henhold til Lov om offentlige veje kapitel 10.
ØkonomiOverslagspris for vejudvidelsen
I sagen om prioritering af pulje til sideudvidelser 2025-2026 er der opgjort følgende overslagspriser:
Nørhedevej (Lyne–Sdr. Vium): Vejen har høj vejklasse og forholdsvis meget tung trafik. Der er flere kurver og bebyggelser tæt på vejen. Overslagspris: 2,85 mio. kr.
Lynevej (Lyne–Sdr. Vium): Vejen har høj vejklasse og moderat tung trafik. Den er meget smal, og trafikken kører ofte i rabatterne. Overslagspris: 5,4 mio. kr.
Samlet overslagspris: 8,25 mio. kr.
Projektet finansieres fra sideudvidelses puljen. EffektvurderingGennemførelse af sideudvidelser på udvalgte smalle veje er en selvstændig indsats i kommunens mobilitetspolitik og bidrager til at styrke fremkommeligheden for alle trafikanter. Udvidelserne forventes desuden at forbedre vejkapitalen, reducere driftsudgifter og øge trafiksikkerheden.
IndstillingAdministrationen indstiller:
at de nødvendige arealer til projektet erhverves ved ekspropriation i henhold til lov om offentlige veje, kapitel 10,
at der udpeges et medlem af Teknik- og Miljøudvalget til at deltage i åstedsforretningen,
at sagen videresendes til Økonomiudvalget og Byrådet med anbefaling om, at Teknik- og Miljøudvalget bemyndiges til at træffe den endelige ekspropriationsbeslutning.
- 10253453_ekspropriationsplan_4
- 10253453_ekspropriationsplan_3
- 10253453_ekspropriationsplan_2
- 10253453_ekspropriationsplan_1
- 10253453_ekspropriationsplan_5
- 10253453_ekspropriationsplan_3
Teknik- og Miljøudvalget anbefaler administrationens indstilling godkendt og udpegede Ole Nyholm Knudsen til at deltage i åstedsforretningen.
Kopier link til punktet - Print
17 : Budgetforslag 2026, Midttrafik
Sagsnr: 25-017103
SagsfremstillingMidttrafik har udarbejdet vedlagte budgetforslag for 2026, som sendes i politisk høring hos ejerkredsen.
Budgetforslaget for 2026 udgør i alt 33,3 mio. kr. og er en stigning på 1 mio. kr. i forhold til 2025. Der er i forhold til 2025 indregnet en prisfremskrivning på i alt 0,05 mio. kr. At prisfremskrivningen ikke er højere skyldes at den samlede omkostningsindeks for operatørudgifter stort set ikke er rykket i forhold til 2025. Stigningen på 1 mio. kr. skyldes blandt andet en nedjustering af passagerindtægter samt en forventet stigning i omkostningerne til flekstrafik.
Der er på kommunens budget for kollektiv trafik afsat i alt 33,745 mio. kr. i 2026, hvoraf budgettet for Midttrafik udgør 32,965 mio. kr. Resten af budgettet på de knap 0,8 mio. kr. er afsat til drift og vedligehold af busskure/holdepladser, køb og salg af skolekort samt øvrige kørselsordninger for skoleelever.
Dette betyder, at der mangles godt 0,3 mio.kr. i forhold til det afsatte budget til Midttrafik. Et eventuelt merforbrug vil i 2026 kunne dækkes af de ledige midler, der er på området, og som forventes overført til 2026.
Lovgrundlag og juridisk vurderingLov om kollektiv trafik.
ØkonomiViden & Strategi, Økonomi bemærker, at der løbende følges op på økonomien i forbindelse med de månedlige budgetopfølgninger og budgetopfølgningerne fra Midttrafik.
EffektvurderingIngen bemærkninger.
IndstillingAdministrationen indstiller, at Teknik- og Miljøudvalget godkender Midttrafiks budgetforslag for 2026.
BilagBeslutning
Teknik- og Miljøudvalget godkendte administrationens indstilling.
Kopier link til punktet - Print
18 : Budgetopfølgning pr. 31. juli 2025, Teknik- og Miljø
Sagsnr: 24-024911
SagsfremstillingAdministrationen fremsender budgetopfølgningen pr. 31. juli 2025 for Teknik- og Miljøudvalgets driftsområde til orientering. Budgetopfølgningen er udarbejdet med udgangspunkt i de korrigerede budgetter for 2025 eksklusiv overførsler fra tidligere år. Et mer- eller mindre forbrug er således udtryk for, om der bruges mere eller mindre af indeværende års budget.
Budgetopfølgningen viser et samlet mindre forbrug på 3,320 mio. kr. Budgetopfølgningen for det skattefinansieret område viser et merforbrug på 2,680 mio. kr. Der forventes et mindre forbrug på det brugerfinansieret område med 6 mio. kr.
Den månedsvise udvikling fremgår af nedenstående oversigt:
Budgetopfølgningen fordeler sig således:
På det skattefinansierede område forventes der et samlet merforbrug på 2,680 mio. kr., hvilket er 1,680 mio. kr. højere end sidste budgetopfølgning.
Det forventede merforbrug med 2,180 mio. kr. på Natur, Land og Vand skyldes:
- Skadedyrsbekæmpelse (rotter) 1,3 mio. kr.
- Miljøområdet - mindre indtægter tilsyn 0,4 mio. kr.
- Vandløbsvedligeholdelse 0,180 mio. kr.
- Renovering af legeplads Momhøje 0,3 mio. kr.
Det forventede netto merforbrug på Trafik og Vej på 0,5 mio. kr. skyldes:
- Vejplanlægning og vejvedligehold 1,5 mio. kr.
- Kollektiv Trafik -1,0 mio. kr. (mindre forbrug)
De forventede merudgifter og mindre indtægter finansieres af overførte midler fra tidligere år.
På det brugerfinansierede område er forventningen uændret i forhold til sidste budgetopfølgning.
Lovgrundlag og juridisk vurderingIngen bemærkninger.
ØkonomiViden & Strategi, Økonomi har ingen bemærkninger.
EffektvurderingIngen bemærkninger.
IndstillingAdministrationen indstiller, at budgetopfølgningen pr. 31. juli 2025 tages til efterretning.
BilagIngen bilag.
BeslutningTeknik- og Miljøudvalget tog budgetopfølgningen til efterretning.
Kopier link til punktet - Print
19 : Budgetopfølgning pr. 31. juli 2025, anlæg Teknik- og Miljø
Sagsnr: 24-024911
SagsfremstillingAdministrationen har udarbejdet 2. budgetopfølgning for udvalgets anlægsområde i 2025. Der er pr. 31. juli 2025 et samlet korrigeret anlægsbudget på i alt 132,566 mio. kr. Der er oprindelig afsat 46,845 mio. kr. og der er overført 85,271 mio. kr. fra 2024.
Det forventede regnskab for 2025 udgør i alt 68,910 mio. kr. fordelt med 76,921 mio. kr. på det skattefinansierede område og 0,2 mio. kr. på det brugerfinansierede område.
Pr. 31. juli 2025 er der et samlet forbrug på 25,420 mio. kr. svarende til 19% af det samlede budget.
Budgetopfølgningen på hovedområderne fremgår af nedenstående oversigt.
Som det fremgår af oversigten forventes der et restbudget på 55 mio. kr., der ikke anvendes i 2025. Hovedparten af midlerne er prioriteret og anvendes i 2026.
Af nedenstående oversigt er oplistet de projekter/puljer, hvor der er et mindre forbrug på over 2 mio. kr. Det bemærkes, at projekter Søndervig består af flere enkelte projekter.
Der er udarbejdet en samlet oversigt over det forventede regnskab for de enkelte projekter og puljer. Oversigten er vedlagt som bilag.
Lovgrundlag og juridisk vurderingIngen bemærkninger.
ØkonomiViden & Strategi, Økonomi har ingen bemærkninger.
EffektvurderingIngen bemærkninger.
IndstillingAdministrationen indstiller, at budgetopfølgningen pr. 31. juli 2025 tages til efterretning.
BilagBeslutningTeknik- og Miljøudvalget tog budgetopfølgningen til efterretning.
Kopier link til punktet - Print
20 : Gensidig orientering
Sagsnr:
Sagsfremstilling- Orientering om samarbejdet med Den Danske Naturfond og om, hvordan dette understøtter indsatserne i Den Lokale Trepart for Ringkøbing Fjord - Ivan
- Orientering om FagMED´s høringssvar vedr. finansiering af nye stillinger til LBK, myndighedhedbehandling - Niels Peter
Ingen bilag.
BeslutningTeknik- og Miljøudvalget tog orienteringen til efterretning.
Der blev herudover orienteret om følgende:
- Skader på LED-belysning
- Slagterigrunden i Skjern
- Nedbrydningsvirksomhed